169 478€ (TVA 20%)
149 000€ (TVA 5.5%)
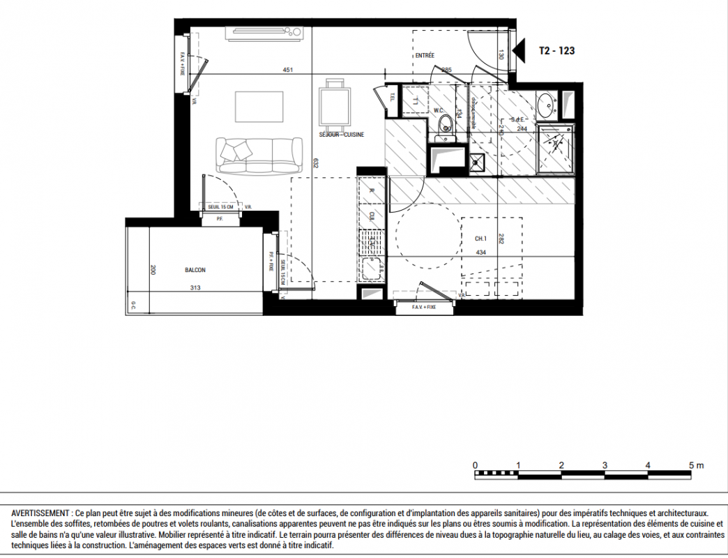
Appt. au 2ème
T2
47 m²
Sud-Est
Ambérieu-en-Bugey (01500)
4ème trimestre 2027
01 81 80 39 10
Présentation du programme "Résidence ATELIER JULES"
une nouvelle résidence signée Nexity à Ambérieu-en-Bugey. Vous voulez profiter d'un environnement plus calme tout en restant proche de Lyon? La Résidence ATELIER JULES est faite pour vous ! Située à 5 min à pied de la gare et 30 min de Lyon en train, cette résidence possède une parfaite localisation entre ville et nature. Nichée dans une rue calme et confidentielle, cette résidence à taille humaine vous propose des appartements du 2 au 4 pièces, une véritable oasis de tranquillité. Tous les appartements sont prolongés par un extérieur généreux (rez-de-jardin, balcon ou terrasse) et d'un box fermé ou d'une place de stationnement. Vous trouverez un local à vélo en rez-de-chaussée. Bénéficiez de la TVA réduite à 5,5% sur cette résidence intimiste. C'est une opportunité unique de devenir propriétaire grâce à un dispositif rendant votre projet immobilier plus accessible ! Pour toutes informations complémentaires, prenez contact avec nous !