Ce lot n’est plus disponible chez VIANOVA ou est vendu.
Vous pouvez revenir dans 24h pour vérifier le stock à jour ou contacter un conseiller Vianova pour vérifier le stock en direct.
Vous pouvez également continuer votre recherche sur notre site « ici ».
177 000€
Appt. au 2ème
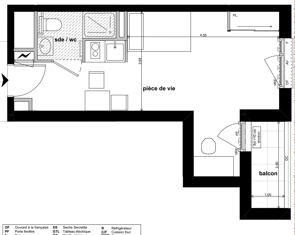
Studio
24.61 m²
-
Rennes (35000)
1er trimestre 2028
01 81 80 39 10
Présentation du programme "KLEEZI | ALMA"
[ LANCEMENT – INVESTISSEMENT LOCATIF ] // PACK MEUBLES OFFERT – Profitez-en dès maintenant !*
Découvrez KLEEZI | ALMA, une résidence étudiants et jeunes actifs idéalement située à RENNES.
Située rue de l'ALMA, la résidence bénéficie d'un emplacement stratégique au cœur d’une métropole étudiante en plein essor, à proximité des écoles, universités et des commerces du quotidien.
Avec Kleezi, découvrez un nouveau concept d’investissement locatif meublé clé en main, alliant rentabilité, liberté et sérénité.
Tout en étant propriétaire de votre logement, vous vous appuyez sur des professionnels de la gestion locative pour gérer le quotidien de votre investissement (recherche de locataires, gestion locative, garantie de loyers impayés et de vacance, et accompagnement fiscal personnalisé).
Une solution clé en main, conçue pour investir sans contrainte.
Les studios tous meublés et équipés, sont complétés par des espaces partagés : cuisine et salle commune, terrasse paysagée et laverie.
Un placement sûr et porteur sur un marché étudiant en pleine croissance, au sein d’une ville régulièrement classée parmi les meilleures de France pour étudier et investir.
Kleezi – investissez simple, serein et durable.
Contactez nos conseillers Lamotte à RENNES, ou rendez-vous sur notre site Vianova.fr, pour en savoir plus et profiter de cette opportunité d'investissement.
* Voir conditions de l'offre sur Lamotte.fr
Autres logements Studio du programme "KLEEZI | ALMA"
| Disponibilité | Prix | No | Genre | Pièces | Surface | Étage | Disponibilité | Prix | ||
|---|---|---|---|---|---|---|---|---|---|---|
| Voir | Archivé | 149 000€ | B1-001 | Appt. | Studio | 21.42m2 | 0-RDC | Archivé | 149 000€ | Voir |
| Voir | Archivé | 149 000€ | B1-002 | Appt. | Studio | 21.67m2 | 0-RDC | Archivé | 149 000€ | Voir |
| Voir | Archivé | 159 000€ | B1-004 | Appt. | Studio | 24m2 | 0-RDC | Archivé | 159 000€ | Voir |
| Voir | Archivé | 174 000€ | B1-104 | Appt. | Studio | 24.67m2 | 1er | Archivé | 174 000€ | Voir |
| Voir | Archivé | 164 000€ | B1-105 | Appt. | Studio | 22.9m2 | 1er | Archivé | 164 000€ | Voir |
| Voir | Archivé | 139 000€ | B1-106 | Appt. | Studio | 19.11m2 | 1er | Archivé | 139 000€ | Voir |
| Voir | Archivé | 142 000€ | B1-108 | Appt. | Studio | 19.15m2 | 1er | Archivé | 142 000€ | Voir |
| Voir | Archivé | 163 000€ | B1-203 | Appt. | Studio | 22.92m2 | 2ème | Archivé | 163 000€ | Voir |
| Voir | Archivé | 170 000€ | B1-205 | Appt. | Studio | 22.9m2 | 2ème | Archivé | 170 000€ | Voir |
| Voir | Archivé | 145 000€ | B1-208 | Appt. | Studio | 19.15m2 | 2ème | Archivé | 145 000€ | Voir |
| Voir | Archivé | 145 000€ | B1-301 | Appt. | Studio | 17.59m2 | 3ème | Archivé Mais pas encore vendu 😉 | 145 000€ | Voir |
| Voir | Archivé | 147 000€ | B1-302 | Appt. | Studio | 18.6m2 | 3ème | Archivé | 147 000€ | Voir |
| Voir | Archivé | 166 000€ | B1-303 | Appt. | Studio | 22.94m2 | 3ème | Archivé | 166 000€ | Voir |
| Voir | Archivé | 180 000€ | B1-304 | Appt. | Studio | 24.61m2 | 3ème | Archivé | 180 000€ | Voir |
| Voir | Archivé | 170 000€ | B1-305 | Appt. | Studio | 22.85m2 | 3ème | Archivé | 170 000€ | Voir |
| Voir | Archivé | 145 000€ | B1-306 | Appt. | Studio | 19.06m2 | 3ème | Archivé | 145 000€ | Voir |
| Voir | Archivé | 140 000€ | B1-307 | Appt. | Studio | 18.63m2 | 3ème | Archivé | 140 000€ | Voir |
| Voir | Archivé | 148 000€ | B1-401 | Appt. | Studio | 17.55m2 | 4ème | Archivé | 148 000€ | Voir |
| Voir | Archivé | 169 000€ | B1-403 | Appt. | Studio | 22.92m2 | 4ème | Archivé | 169 000€ | Voir |
| Voir | Archivé | 183 000€ | B1-404 | Appt. | Studio | 24.66m2 | 4ème | Archivé | 183 000€ | Voir |
| Voir | Archivé | 173 000€ | B1-405 | Appt. | Studio | 22.9m2 | 4ème | Archivé | 173 000€ | Voir |
| Voir | Archivé | 143 000€ | B1-407 | Appt. | Studio | 18.63m2 | 4ème | Archivé | 143 000€ | Voir |
| Voir | Archivé | 151 000€ | B1-408 | Appt. | Studio | 19.15m2 | 4ème | Archivé | 151 000€ | Voir |
| Voir | Archivé | 150 000€ | B1-409 | Appt. | Studio | 18.57m2 | 4ème | Archivé | 150 000€ | Voir |
| Voir | Archivé | 153 000€ | B1-502 | Appt. | Studio | 18.6m2 | 5ème | Archivé | 153 000€ | Voir |
| Voir | Archivé | 164 000€ | B1-503 | Appt. | Studio | 19.31m2 | 5ème | Archivé | 164 000€ | Voir |
| Voir | Archivé | 162 000€ | B1-504 | Appt. | Studio | 18.3m2 | 5ème | Archivé | 162 000€ | Voir |
| Voir | Archivé | 174 000€ | B1-505 | Appt. | Studio | 21m2 | 5ème | Archivé | 174 000€ | Voir |
| Voir | Archivé | 151 000€ | B1-506 | Appt. | Studio | 19.07m2 | 5ème | Archivé | 151 000€ | Voir |
| Voir | Archivé | 146 000€ | B1-507 | Appt. | Studio | 18.63m2 | 5ème | Archivé | 146 000€ | Voir |
| Voir | Archivé | 153 000€ | B1-509 | Appt. | Studio | 18.5m2 | 5ème | Archivé | 153 000€ | Voir |
| Voir | Archivé | 156 000€ | B1-601 | Appt. | Studio | 17.67m2 | 6ème | Archivé | 156 000€ | Voir |
| Voir | Archivé | 158 000€ | B1-602 | Appt. | Studio | 18.63m2 | 6ème | Archivé | 158 000€ | Voir |
| Voir | Archivé | 164 000€ | B1-603 | Appt. | Studio | 19.28m2 | 6ème | Archivé | 164 000€ | Voir |
| Voir | Archivé | 162 000€ | B1-604 | Appt. | Studio | 18.15m2 | 6ème | Archivé | 162 000€ | Voir |
| Voir | Archivé | 191 000€ | B1-605 | Appt. | Studio | 21.96m2 | 6ème | Archivé | 191 000€ | Voir |
| Voir | Archivé | 151 000€ | B1-607 | Appt. | Studio | 18.63m2 | 6ème | Archivé | 151 000€ | Voir |
| Voir | Archivé | 159 000€ | B1-608 | Appt. | Studio | 19.15m2 | 6ème | Archivé | 159 000€ | Voir |
| Voir | Archivé | 158 000€ | B1-609 | Appt. | Studio | 18.55m2 | 6ème | Archivé | 158 000€ | Voir |