Prix
201 000€
Type
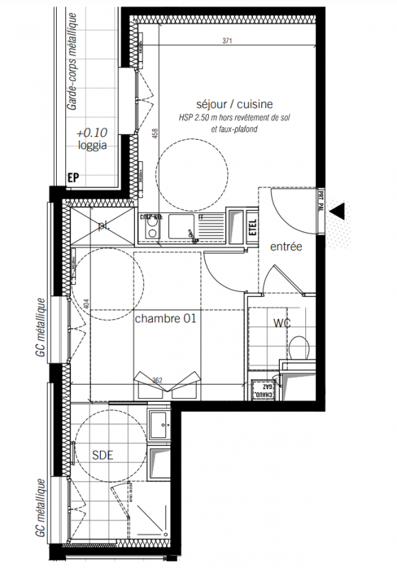
Appt. au 1er
Pièces
T2
Surface
38.6 m²
Exposition
-
Ville
Saint-Malo (35400)
Livraison
3ème trimestre 2026
Informations
01 81 80 39 10

Présentation du programme "MALORETTE"

[ APPARTEMENTS NEUFS À SAINT-MALO ] Découvrez MALORETTE, une résidence neuve nichée sur le site historique de l'ancienne caserne Lorette. Composée d'appartements modernes, du 2 au 4 pièces, elle se situe à l'entrée sud de la ville, entre Saint-Servan et le splendide domaine de la Briantais. Cet endroit, riche en histoire, accueille ces nouveaux logements qui marient patrimoine et modernité pour un cadre de vie unique.

Les appartements en rez-de-chaussée disposent de grands jardins privatifs, tandis que ceux des étages supérieurs bénéficient de vastes terrasses. Matériaux nobles et finitions soignées garantissent un confort optimal. La conception de la résidence met l'accent sur le bien-être quotidien, avec une forte prise en compte des enjeux environnementaux.
MALORETTE offre un cadre de vie exceptionnel au sein de l'écoquartier, proche des commerces, des écoles, du marché et de la gare, alliant praticité et sérénité.
Contactez nos conseillers Lamotte pour en savoir plus ou rendez-vous sur notre site Vianova.fr.

Autres logements T2 du programme "MALORETTE"

Disponibilité Prix Genre Pièces Surface Étage
Voir
Disponible
241 000€ Appt. T2 46.9m2 1er
Voir
Disponible
246 000€ Appt. T2 46.9m2 2ème
Voir
Disponible
234 000€ Appt. T2 42.5m2 3ème
DO NOT CLICK