Prix
185 000€
185 000€
Type
Appt. au 0-RDC
Appt. au 0-RDC
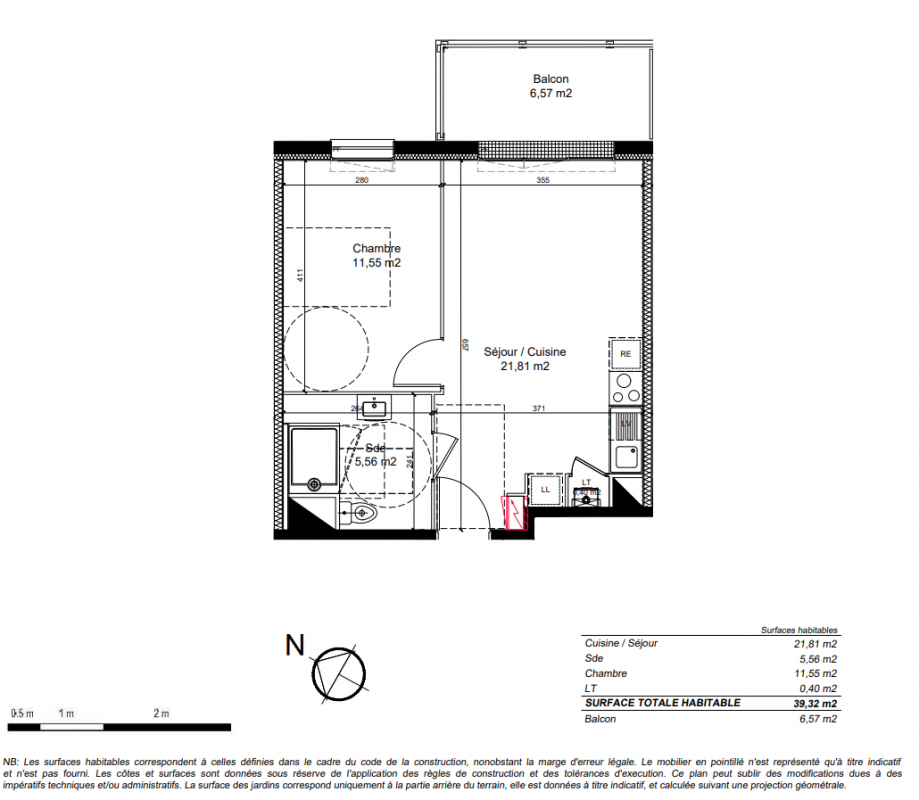
Pièces
T2
T2
Surface
42.6 m²
42.6 m²
Exposition
Nord-Est
Nord-Est
Ville
Chartres (28000)
Chartres (28000)
Livraison
1er trimestre 2026
1er trimestre 2026
Informations
01 81 80 39 10
01 81 80 39 10
Présentation du programme "SEQUOIA PARK"
Une métropole ambitieuse Un territoire en perpétuel mouvement Un paysage aussi urbain que bucolique Un cadre de vie prospère et apaisant