Ce lot n’est plus disponible chez VIANOVA ou est vendu.
Vous pouvez revenir dans 24h pour vérifier le stock à jour ou contacter un conseiller Vianova pour vérifier le stock en direct.
Vous pouvez également continuer votre recherche sur notre site « ici ».
191 089€ (TVA 20%)
168 000€ (TVA 5.5%)
Appt. au 1er
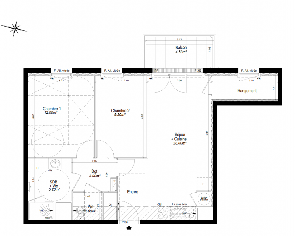
T3
59 m²
Est
Mainvilliers (28300)
2ème trimestre 2028
01 81 80 39 10
Présentation du programme "LUMINA NOUVEAU A MAINVILLIERS"
AVANT PREMIERE : Profitez du PRET A TAUX 0% et de la TVA 5.5 % pour devenir PROPRIETAIRE ! Une nouvelle adresse à Mainvilliers, entre nature et dynamisme urbain pour devenir PROPRIETAIRE D'UN LOGEMENT NEUF Découvrez en avant première notre nouvelle résidence à Mainvilliers, proposant des appartements neufs à vendre, du studio au 4 pièces, dans un quartier entièrement renouvelé où la nature reprend ses droits. Pensée pour le confort et la qualité de vie, cette résidence offre des logements lumineux, bien agencés, tous dotés d'un espace extérieur (balcon, terrasse ou jardin) et de places de parking privatives. Située à proximité immédiate du centre-ville et à quelques minutes de Chartres, elle bénéficie d'un emplacement stratégique, idéal pour les jeunes actifs, les familles en quête de sérénité, mais aussi pour les investisseurs à la recherche d'un bien aux dernières normes de construction. Grâce au prêt à taux zéro et à la TVA réduite à 5,5%, devenir propriétaire n'a jamais été aussi accessible. Un cadre de vie agréable, verdoyant et moderne, au coeur d'un environnement en pleine transformation. Pour toutes informations complémentaires, prenez contact avec nous !
Autres logements T3 du programme "LUMINA NOUVEAU A MAINVILLIERS"
| Disponibilité | Prix | No | Genre | Pièces | Surface | Étage | Disponibilité | Prix | ||
|---|---|---|---|---|---|---|---|---|---|---|
| Voir | Archivé | 196 777€ | 2307 | Appt. | T3 | 59m2 | 3ème | Archivé | 196 777€ | Voir |
| Voir | Archivé | 192 227€ | 2208 | Appt. | T3 | 59m2 | 2ème | Archivé | 192 227€ | Voir |
| Voir | Archivé | 199 051€ | 2305 | Appt. | T3 | 58m2 | 3ème | Archivé | 199 051€ | Voir |
| Voir | Archivé | 199 051€ | 2204 | Appt. | T3 | 60m2 | 2ème | Archivé | 199 051€ | Voir |
| Voir | Archivé | 196 777€ | 2104 | Appt. | T3 | 60m2 | 1er | Archivé | 196 777€ | Voir |
| Voir | Archivé | 199 051€ | 2003 | Appt. | T3 | 60m2 | 0-RDC | Archivé | 199 051€ | Voir |
| Voir | Archivé | 194 502€ | 2205 | Appt. | T3 | 58m2 | 2ème | Archivé | 194 502€ | Voir |
| Voir | Archivé | 192 227€ | 2105 | Appt. | T3 | 58m2 | 1er | Archivé | 192 227€ | Voir |
| Voir | Archivé | 196 777€ | 2004 | Appt. | T3 | 58m2 | 0-RDC | Archivé | 196 777€ | Voir |