Ce lot n’est plus disponible chez VIANOVA ou est vendu.
Vous pouvez revenir dans 24h pour vérifier le stock à jour ou contacter un conseiller Vianova pour vérifier le stock en direct.
Vous pouvez également continuer votre recherche sur notre site « ici ».
158 104€ (TVA 20%)
139 000€ (TVA 5.5%)
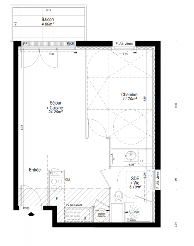
Appt. au 2ème
T2
41 m²
Est
Mainvilliers (28300)
2ème trimestre 2028
01 81 80 39 10
Présentation du programme "LUMINA NOUVEAU A MAINVILLIERS"
AVANT PREMIERE : Profitez du PRET A TAUX 0% et de la TVA 5.5 % pour devenir PROPRIETAIRE ! Une nouvelle adresse à Mainvilliers, entre nature et dynamisme urbain pour devenir PROPRIETAIRE D'UN LOGEMENT NEUF Découvrez en avant première notre nouvelle résidence à Mainvilliers, proposant des appartements neufs à vendre, du studio au 4 pièces, dans un quartier entièrement renouvelé où la nature reprend ses droits. Pensée pour le confort et la qualité de vie, cette résidence offre des logements lumineux, bien agencés, tous dotés d'un espace extérieur (balcon, terrasse ou jardin) et de places de parking privatives. Située à proximité immédiate du centre-ville et à quelques minutes de Chartres, elle bénéficie d'un emplacement stratégique, idéal pour les jeunes actifs, les familles en quête de sérénité, mais aussi pour les investisseurs à la recherche d'un bien aux dernières normes de construction. Grâce au prêt à taux zéro et à la TVA réduite à 5,5%, devenir propriétaire n'a jamais été aussi accessible. Un cadre de vie agréable, verdoyant et moderne, au coeur d'un environnement en pleine transformation. Pour toutes informations complémentaires, prenez contact avec nous !
Autres logements T2 du programme "LUMINA NOUVEAU A MAINVILLIERS"
| Disponibilité | Prix | No | Genre | Pièces | Surface | Étage | Disponibilité | Prix | ||
|---|---|---|---|---|---|---|---|---|---|---|
| Voir | Archivé | 152 417€ | 2102 | Appt. | T2 | 41m2 | 1er | Archivé | 152 417€ | Voir |
| Voir | Archivé | 160 379€ | 2203 | Appt. | T2 | 41m2 | 2ème | Archivé | 160 379€ | Voir |
| Voir | Archivé | 149 004€ | 2103 | Appt. | T2 | 41m2 | 1er | Archivé | 149 004€ | Voir |
| Voir | Archivé | 170 616€ | 2005 | Appt. | T2 | 45m2 Le bon plan | 0-RDC | Archivé | 170 616€ | Voir |
| Voir | Archivé | 161 516€ | 2001 | Appt. | T2 | 41m2 | 0-RDC | Archivé | 161 516€ | Voir |
| Voir | Archivé | 146 729€ | 2007 | Appt. | T2 | 42m2 | 0-RDC | Archivé | 146 729€ | Voir |
| Voir | Archivé | 166 066€ | 2006 | Appt. | T2 | 45m2 | 0-RDC | Archivé | 166 066€ | Voir |
| Voir | Archivé | 159 241€ | 2002 | Appt. | T2 | 41m2 | 0-RDC | Archivé | 159 241€ | Voir |
| Voir | Archivé | 164 928€ | 2207 | Appt. | T2 | 45m2 | 2ème | Archivé | 164 928€ | Voir |
| Voir | Archivé | 162 654€ | 2107 | Appt. | T2 | 45m2 | 1er | Archivé | 162 654€ | Voir |
| Voir | Archivé | 160 379€ | 2201 | Appt. | T2 | 41m2 | 2ème | Archivé | 160 379€ | Voir |
| Voir | Archivé | 149 004€ | 2101 | Appt. | T2 | 41m2 | 1er | Archivé | 149 004€ | Voir |
| Voir | Archivé | 164 928€ | 2206 | Appt. | T2 | 45m2 | 2ème | Archivé | 164 928€ | Voir |
| Voir | Archivé | 162 654€ | 2106 | Appt. | T2 | 45m2 | 1er | Archivé | 162 654€ | Voir |