Prix
67 200€
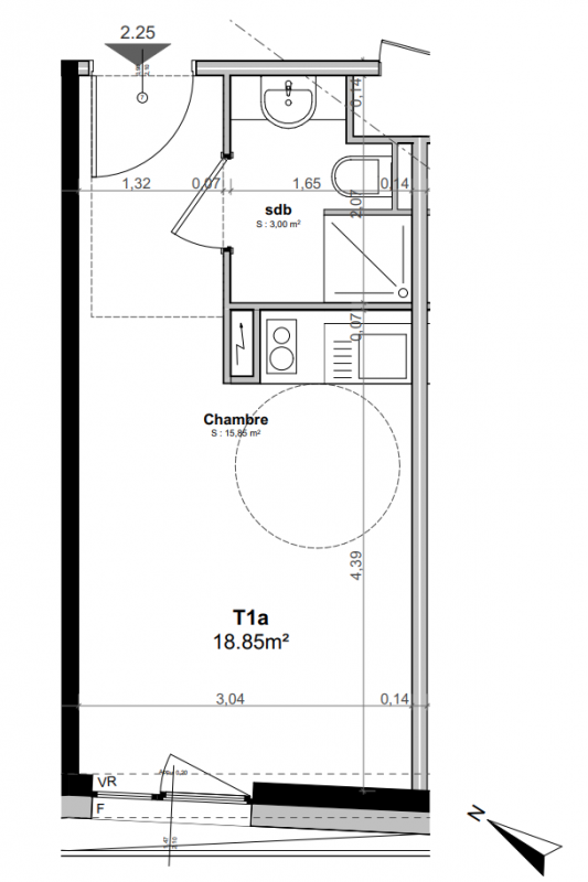
Type
Appt. au 2ème
Pièces
Studio
Surface
18.86 m²
Exposition
Sud
Ville
Strasbourg (67000)
Livraison
1er trimestre 2025
Informations
01 81 80 39 10

Présentation du programme "Résidence Étudiante Studéa Strasbourg Rieth 1"

Descriptif résidenceUn emplacement stratégique qui dynamise l’occupation locativeSituée dans le quartier Cronenbourg Ouest, la résidence bénéficie d’un environnement urbain complet : commerces alimentaires, boulangeries, restaurants, banques, services postaux… tout est accessible à pied, renforçant l’attractivité du secteur pour les étudiants en quête de confort et de proximité. La présence du Parc de la Bergerie, juste en face, ajoute une vraie plus¿value au cadre de vie : espaces verts, calme, détente, sport en plein air… un atout différenciant qui fidélise les résidents et valorise durablement l’actif. Accessibilité exceptionnelle = mobilité facilitée = forte attractivitéLa résidence est parfaitement connectée au réseau de transports en commun :Arrêt Hochfelden – ligne G du BHNS : situé juste en face de la résidence, il permet un accès direct et rapide aux pôles majeurs de la ville. Tram ligne C, à quelques minutes à pied : desserte directe des campus universitaires centraux, bibliothèques, grandes écoles et zones de vie étudiante. Cette accessibilité fait de Studéa Strasbourg Rieth 1 une résidence recherchée pour sa praticité quotidienne, réduisant les temps de trajet et augmentant l’attractivité auprès d’un public étudiant très mobile.Une adresse au cœur des grands pôles étudiantsL’emplacement de la résidence permet de capter une large base de demande étudiante, grâce à la proximité immédiate de plusieurs campus majeurs :Campus de l’EsplanadeCampus MédecineCampus CronenbourgCampus d’Illkirch (pharmacie, IUT, International Space University, IGBMC…) IUT Louis Pasteur, particulièrement proche et générateur d’une demande récurrente. Descriptif gestionnaireDepuis sa création en 1987, Studéa s’est imposée comme un acteur incontournable dans le domaine des résidences étudiantes en France et a su s’adapter aux évolutions du marché.Nexity Studéa se positionne comme un acteur solide et en constante expansion, fièrement porté par des valeurs telles que la proximité, le bien-être et la responsabilité. L’approche de Nexity Studéa combine les rôles de promoteur et de gestionnaire, assurant une offre de logements modernes et bien équipés : studios et appartements meublés, espaces communs, sécurité, Internet haut débit et salles de sport. Ces résidences, implantées stratégiquement dans diverses localités, répondent aux besoins spécifiques des étudiants, qu’ils soient dans les grandes métropoles universitaires ou dans les villes de province. Extrait du bail...

Autres logements Studio du programme "Résidence Étudiante Studéa Strasbourg Rieth 1"

Disponibilité Prix Genre Pièces Surface Étage
Voir
Disponible
68 400€ Appt. Studio 18.66m2 2ème
DO NOT CLICK