439 000€
Appt. au 2ème
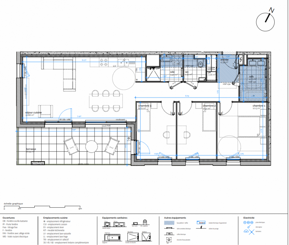
T4
86.72 m²
Sud
Nancy (54100)
4ème trimestre 2028
01 81 80 39 10
Présentation du programme "SIGNATURE - TROIS MAISONS"
Nichée au 59 rue Charles Keller, dans le quartier prisé des Trois-Maisons, la résidence bénéficie d’un environnement paisible près des berges du canal, tout en étant connectée aux commerces, écoles, transports et lieux culturels emblématiques comme la Place Stanislas ou le parc de la Pépinière.
Ce programme intimiste, niché dans un îlot verdoyant, propose des appartements du studio au 5 pièces, tous prolongés par un espace extérieur (balcon, terrasse, loggia ou jardin). Les volumes sont généreux, lumineux, et les prestations haut de gamme : plancher chauffant, volets roulants motorisés, interphonie connectée, isolation renforcée, double orientation…
L’architecture contemporaine s’intègre avec finesse dans un environnement historique et végétalisé.
Vous rêvez d’un logement qui vous ressemble ? Ne laissez pas passer cette opportunité rare de vivre au vert en ville, dans un programme à taille humaine.
Contactez-nous dès aujourd’hui pour découvrir les plans, les disponibilités et personnaliser votre futur logement.
Autres logements T4 du programme "SIGNATURE - TROIS MAISONS"
| Disponibilité | Prix | No | Genre | Pièces | Surface | Étage | Disponibilité | Prix | ||
|---|---|---|---|---|---|---|---|---|---|---|
| Voir | Optionné | 404 000€ | LB010 | Appt. | T4 | 86.77m2 Le bon plan | 0-RDC | Optionné Mais pas encore vendu 😉 | 404 000€ | Voir |
| Voir | Disponible | 413 000€ | LB110 | Appt. | T4 | 88.02m2 | 1er | Disponible | 413 000€ | Voir |
| Voir | Optionné | 420 000€ | LB111 | Appt. | T4 | 86.77m2 | 1er | Optionné Mais pas encore vendu 😉 | 420 000€ | Voir |
| Voir | Optionné | 430 000€ | LB211 | Appt. | T4 | 86.74m2 | 2ème | Optionné Mais pas encore vendu 😉 | 430 000€ | Voir |