114 166€
Appt. au 3ème
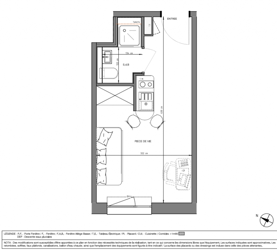
Studio
18.5 m²
Ouest
Faches-Thumesnil (59155)
2ème trimestre 2028
01 81 80 39 10
Présentation du programme "Studio 127"
Investissez à Faches-Thumesnil aux portes de LilleCommune de 18 200 habitants, intégrée à la métropole Européenne de Lille (MEL), l’une des plus denses et dynamiques de FrancePopulation variée, mélange de familles, jeunes actifs et étudiants, attirés par un cadre urbain calme tout en restant connecté aux pôles lillois.Environnement calme, résidentiel mais urbain, avec accès direct aux bassins d’emploi, zones commerciales et pôles de santé.Accès rapide aux axes structurants (A1, A25) permettant des déplacements fluides au quotidien à l’échelle de la métropole.Une métropole étudiante, économique et européenne avec un accès direct à la dynamique LilloiseAttractivité portée par la proximité des pôles universitaires lillois : plus de 115 000 étudiants sur la Métropole, soit 10 % de la population.Une ville culturelle, connectée, en rénovation constante, assurant une valorisation stable à long terme.Forte demande locative étudiante grâce à la proximité des universités, du CHU, d’Eurasanté et de campus privés (accès à 60 000 étudiants via le futur tramway). Commodités et transportsUn emplacement stratégique, boosté par le futur Tramway M en 2035, reliant directement la ville à Lille : un atout d’avenir fort pour la mobilité, la fréquentation étudiante et la valorisation du secteur.Commerces et services accessibles à pied : commerces de bouche, pharmacie, médecins, à moins de 500 m.Station V’Lille à proximité et 12 km de pistes cyclables pour les déplacements doux. Focus prestations/résidenceUne résidence à l'architecture contemporaine, mêlant briques traditionnelles et menuiseries modernes.Des espaces communs généreux (hall d’accueil chaleureux, salle de coworking, cafétéria avec terrasse, laverie, jardin paysager au cœur d’îlot)Des T1 fonctionnels avec belles optimisations d’espace pour le bien-être des étudiants.Résidence sécurisée, adaptée aux usages étudiants : manager sur site, animations, réception de colis.Performances énergétiques conformes à la RE2020, avec solutions de chauffage collectif efficaces.Le + du programme Aucune autre résidence étudiante sur la commune : positionnement unique sur le secteur, absence de concurrence directe locale.
Autres logements Studio du programme "Studio 127"
| Disponibilité | Prix | No | Genre | Pièces | Surface | Étage | Disponibilité | Prix | ||
|---|---|---|---|---|---|---|---|---|---|---|
| Voir | Disponible | 109 291€ | 410 | Appt. | Studio | 17.71m2 | 4ème | Disponible | 109 291€ | Voir |
| Voir | Disponible | 111 636€ | 108 | Appt. | Studio | 18.09m2 | 1er | Disponible | 111 636€ | Voir |
| Voir | Disponible | 111 760€ | 320 | Appt. | Studio | 18.11m2 | 3ème | Disponible | 111 760€ | Voir |
| Voir | Disponible | 113 302€ | 403 | Appt. | Studio | 18.36m2 | 4ème | Disponible | 113 302€ | Voir |
| Voir | Disponible | 113 302€ | 402 | Appt. | Studio | 18.36m2 | 4ème | Disponible | 113 302€ | Voir |
| Voir | Disponible | 113 302€ | 304 | Appt. | Studio | 18.36m2 | 3ème | Disponible | 113 302€ | Voir |
| Voir | Disponible | 113 302€ | 203 | Appt. | Studio | 18.36m2 | 2ème | Disponible | 113 302€ | Voir |
| Voir | Disponible | 113 302€ | 103 | Appt. | Studio | 18.36m2 | 1er | Disponible | 113 302€ | Voir |
| Voir | Disponible | 113 426€ | 110 | Appt. | Studio | 18.38m2 | 1er | Disponible | 113 426€ | Voir |
| Voir | Disponible | 113 796€ | 329 | Appt. | Studio | 18.44m2 | 3ème | Disponible | 113 796€ | Voir |
| Voir | Disponible | 113 796€ | 229 | Appt. | Studio | 18.44m2 | 2ème | Disponible | 113 796€ | Voir |
| Voir | Disponible | 114 166€ | 427 | Appt. | Studio | 18.5m2 | 4ème | Disponible | 114 166€ | Voir |
| Voir | Disponible | 114 166€ | 426 | Appt. | Studio | 18.5m2 | 4ème | Disponible | 114 166€ | Voir |
| Voir | Disponible | 114 166€ | 425 | Appt. | Studio | 18.5m2 | 4ème | Disponible | 114 166€ | Voir |
| Voir | Disponible | 114 166€ | 321 | Appt. | Studio | 18.5m2 | 3ème | Disponible | 114 166€ | Voir |
| Voir | Disponible | 114 166€ | 314 | Appt. | Studio | 18.5m2 | 3ème | Disponible | 114 166€ | Voir |
| Voir | Disponible | 114 166€ | 312 | Appt. | Studio | 18.5m2 | 3ème | Disponible | 114 166€ | Voir |
| Voir | Disponible | 114 166€ | 228 | Appt. | Studio | 18.5m2 | 2ème | Disponible | 114 166€ | Voir |
| Voir | Disponible | 114 166€ | 214 | Appt. | Studio | 18.5m2 | 2ème | Disponible | 114 166€ | Voir |
| Voir | Disponible | 114 166€ | 212 | Appt. | Studio | 18.5m2 | 2ème | Disponible | 114 166€ | Voir |
| Voir | Disponible | 114 166€ | 123 | Appt. | Studio | 18.5m2 | 1er | Disponible | 114 166€ | Voir |
| Voir | Disponible | 114 166€ | 122 | Appt. | Studio | 18.5m2 | 1er | Disponible | 114 166€ | Voir |
| Voir | Disponible | 114 228€ | 213 | Appt. | Studio | 18.51m2 | 2ème | Disponible | 114 228€ | Voir |
| Voir | Disponible | 114 228€ | 115 | Appt. | Studio | 18.51m2 | 1er | Disponible | 114 228€ | Voir |
| Voir | Disponible | 114 228€ | 114 | Appt. | Studio | 18.51m2 | 1er | Disponible | 114 228€ | Voir |
| Voir | Disponible | 114 598€ | 423 | Appt. | Studio | 18.57m2 | 4ème | Disponible | 114 598€ | Voir |
| Voir | Disponible | 117 067€ | 7 | Appt. | Studio | 18.97m2 | 0-RDC | Disponible | 117 067€ | Voir |
| Voir | Disponible | 120 708€ | 424 | Appt. | Studio | 19.56m2 | 4ème | Disponible | 120 708€ | Voir |
| Voir | Disponible | 198 156€ | 401 | Appt. | Studio | 32.11m2 | 4ème | Disponible | 198 156€ | Voir |