285 000€
Appt. au 1er
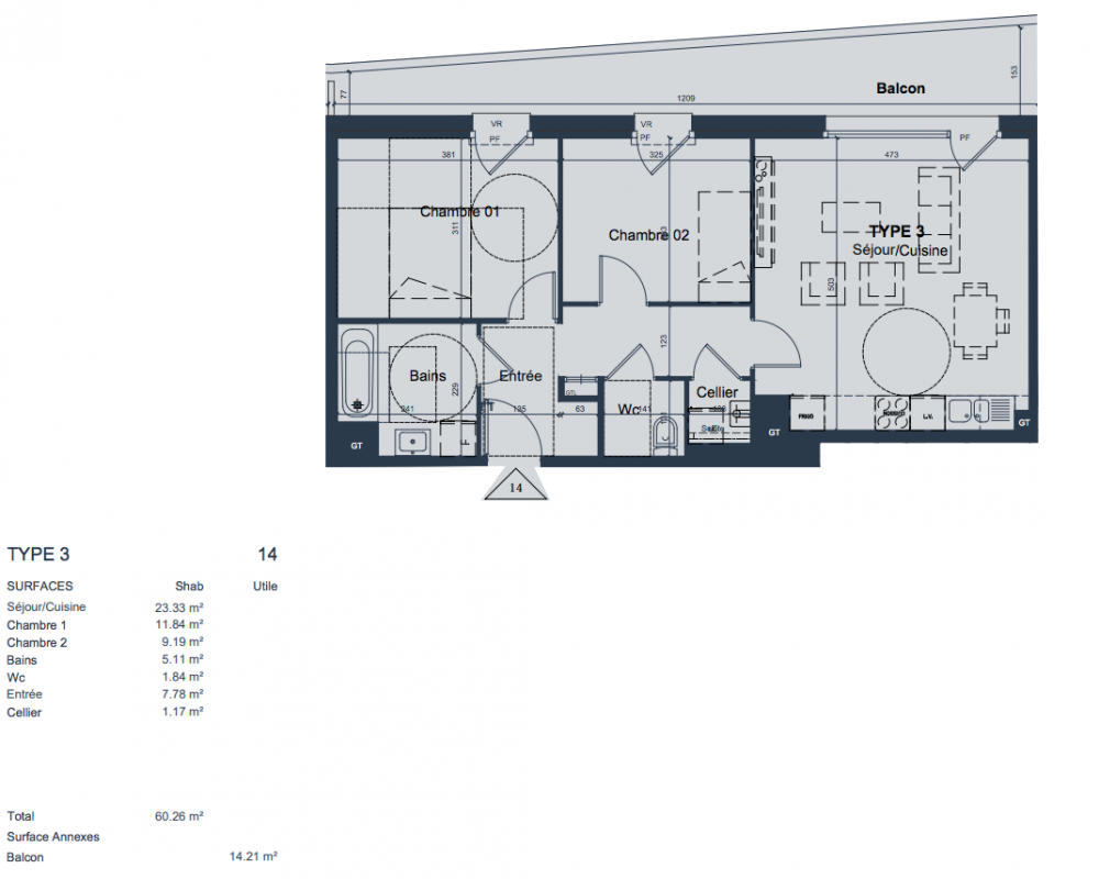
T3
60.26 m²
Nord-Est
Marquette-lez-Lille (59520)
1er trimestre 2024
01 81 80 39 10
Présentation du programme "ARTI"
La résidence ARTI s’inscrit dans un environnement résidentiel calme, à deux pas du centre-ville de Marquette-lez-Lille. Son architecture contemporaine associe une élégante façade en brique grise à des détails en bardage métallique, soulignant une identité moderne et sobre. Les nombreux balcons rythment le bâtiment tout en offrant des espaces extérieurs confortables.Les appartements, du 2 au 4 pièces en plain-pied ou duplex, proposent des volumes lumineux et bien agencés. Une attention pARTIculière a été portée au bien-être des résidents : espaces optimisés, pièces de vie ouvertes, luminosité naturelle et accès systématique à un balcon ou une terrasse.La résidence inclut également des stationnements extérieurs et en sous‑sol, avec possibilité de box fermés, ainsi que des locaux dédiés aux mobilités douces.nEmplacement stratégique, à proximité immédiate de Lille et des principaux axes de transportCadre de vie résidentiel, calme et verdoyant, à quelques minutes des berges de la Deûle et du Canal de RoubaixArchitecture contemporaine alliant modernité, matériaux qualitatifs et éléganceBalcons, terrasses ou espaces extérieurs pour l’ensemble des logementsAppartements lumineux, avec duplex spacieux aux derniers étagesRésidence équipée pour les mobilités douces : deux locaux vélos avec prises de rechargeArrêt de bus « Pont Blanc » au pied de la résidenceAppartements :• Sols souples PVC pour les logements en plain-pied• Carrelage en salle de bain et stratifié dans les pièces de vie pour les duplex• Majorité de logements équipés de baignoires• Celliers pour certains lots• Chauffage gaz• Occultation manuelle dans les chambres (motorisation en option)• Balcon ou terrasse pour tous les appartements• Logements duplex spacieux aux étages supérieursRésidence :• Accès sécurisé par badge Vigik et visiophone• Deux locaux vélos, équipés pour la recharge des vélos et trottinettes électriques• Stationnement extérieur ou en sous-sol (places ouvertes ou box fermés en option)• Bâtiment conforme à la RT 2012• Carré potager partagé pour les résidentsÀ proximité, à pied :• Arrêt de bus « Pont Blanc » au pied de la résidence (L14, L86, L5 et L91)• Centre-ville de Marquette-lez-Lille à 4 min*• La Madeleine à 10 min*• Marcq-en-Barœul à 11 min*• Centre-ville de Lille à 20 min*En voiture :• Gares Lille Flandres et Lille Europe à 20 min*Mobilité et accessibilité :• Nouvelle ligne de tramway en cours de déploiement, avec deux stations prévues à Marquette-lez-Lille• Parcs à vélos sécurisés d
Autres logements T3 du programme "ARTI"
| Disponibilité | Prix | No | Genre | Pièces | Surface | Étage | Disponibilité | Prix | ||
|---|---|---|---|---|---|---|---|---|---|---|
| Voir | Disponible | 290 000€ | 13 | Appt. | T3 | 62.23m2 | 1er | Disponible | 290 000€ | Voir |
| Voir | Disponible | 295 000€ | 23 | Appt. | T3 | 62.23m2 | 2ème | Disponible | 295 000€ | Voir |
| Voir | Disponible | 290 000€ | 24 | Appt. | T3 | 60.26m2 | 2ème | Disponible | 290 000€ | Voir |
| Voir | Disponible | 375 000€ | 31 | Appt. | T3 | 77m2 | 3ème | Disponible | 375 000€ | Voir |
| Voir | Disponible | 317 000€ | 34 | Appt. | T3 | 68.44m2 | 3ème | Disponible | 317 000€ | Voir |
| Voir | Disponible | 370 000€ | 35 | Appt. | T3 | 75.81m2 | 3ème | Disponible | 370 000€ | Voir |
| Voir | Disponible | 390 000€ | 36 | Appt. | T3 | 79.51m2 | 3ème | Disponible | 390 000€ | Voir |
| Voir | Disponible | 345 000€ | 37 | Appt. | T3 | 73.14m2 | 3ème | Disponible | 345 000€ | Voir |