Ce lot n’est plus disponible chez VIANOVA ou est vendu.

Vous pouvez revenir dans 24h pour vérifier le stock à jour ou contacter un conseiller Vianova pour vérifier le stock en direct.
Vous pouvez également continuer votre recherche sur notre site « ici ».

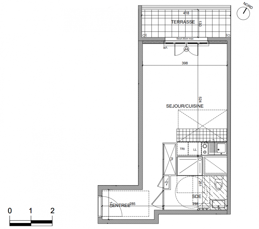
Prix
262 000€
Type
Appt. au 0-RDC
Pièces
-
Surface
32.38 m²
Exposition
-
Ville
Clamart (92140)
Livraison
3ème trimestre 2026
Informations
01 81 80 39 10

Présentation du programme "L'Egérie II"

 Située à Clamart, L’Égérie II propose 50 nouveaux appartements neufs, du studio au 5 pièces, au cœur du dynamique quartier Grand Canal. Bénéficiant d'une architecture inspirée de l'Art Déco, la résidence offre des espaces extérieurs (balcons, terrasse ou jardin privatif) et un confort de vie optimal, à proximité des commerces, écoles, et transports en commun (T6, bus). Profitez d’un cadre de vie idéal, à seulement 8 km de Paris, entre modernité et nature, avec des prestations de qualité. 

Autres logements - du programme "L'Egérie II"

Pas de logements disponibles
DO NOT CLICK