Prix
444 000€
Type
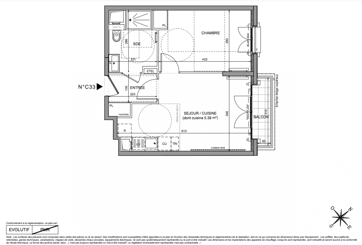
Appt. au 3ème
Pièces
T2
Surface
39.38 m²
Exposition
-
Ville
Puteaux (92800)
Livraison
3ème trimestre 2027
Informations
01 81 80 39 10

Présentation du programme "QUAI DE DION BOUTON"


Parquet contrecollé de type monolame 140 dans toutes les pièces sèches
Carrelage en grés cérame rectifié au sol dans les pièces humides
Faïence en grès cérame rectifié dans les salles de bains et salles d’eau
Meuble lave mains dans les WC avec vasque céramique suivant plan
Meuble vasque avec miroir et bandeau lumineux dans les salles de bain et salles d’eau
Colonne de douche et paroi de douche
Baignoire 175x75 cm et pare-baignoire
Sèche-serviette électrique ou mixte
WC suspendus
Volets roulants motorisés avec commande centralisée
Chape acoustique pour tous les logements
Portes intérieures des logements pleine hauteur 2.14m
Menuiseries en aluminium extérieur
Chauffage pompe à chaleur

Autres logements T2 du programme "QUAI DE DION BOUTON"

Disponibilité Prix Genre Pièces Surface Étage
Voir
Optionné
461 000€ Appt. T2 40.83m2 3ème
DO NOT CLICK