Ce lot n’est plus disponible chez VIANOVA ou est vendu.

Vous pouvez revenir dans 24h pour vérifier le stock à jour ou contacter un conseiller Vianova pour vérifier le stock en direct.
Vous pouvez également continuer votre recherche sur notre site « ici ».

Prix
460 000€
Type
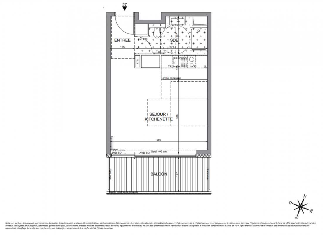
Appt. au 2ème
Pièces
Studio
Surface
34.1 m²
Exposition
-
Ville
Paris 15ème (75015)
Livraison
1er trimestre 2025
Informations
01 81 80 39 10

Présentation du programme "SCENE PLEIN CIEL"


34 appartements avec balcons et terrasses
De 2 à 5 pièces
2 duplex avec toit-terrasse
Des volumes très contemporains, ouverts et lumineux
Des extérieurs spacieux avec, en étage, vues panoramiques sur Paris et la tour Eiffel
Double entrée avec interphone
Cellier à l’entresol pour poussettes et vélos accessible par ascenseur
16 parkings dans l’immeuble voisin

Prestations haut de gamme : (à voir si possible de compléter)

Parquet massif dans les séjours
Carrelage en grès cérame rectifié, 60x60 dans les pièces d’eau
Sols des balcons en béton lisse ou bois
Vasques encastrées
Robinetterie Grohe
Système domotique pilotable depuis un smartphone

Autres logements Studio du programme "SCENE PLEIN CIEL"

Disponibilité Prix Genre Pièces Surface Étage
Voir
Archivé
680 000€ Appt. Studio 49.4m2 2ème
DO NOT CLICK