Prix
369 000€
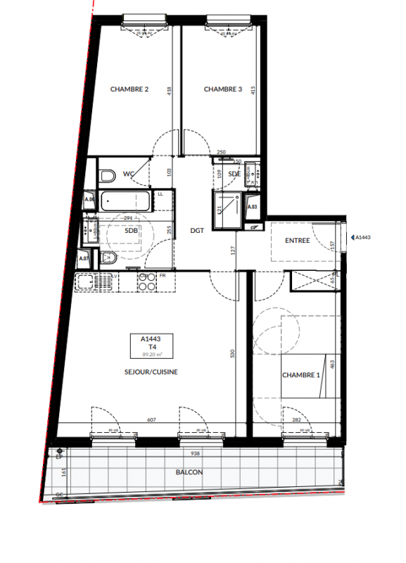
Type
Appt. au 4ème
Pièces
T4
Surface
89.2 m²
Le bon plan
Exposition
Sud
Ville
La Courneuve (93120)
Livraison
2ème trimestre 2026
Informations
01 81 80 39 10

Présentation du programme "NOVA GREEN"

Nouveau ! Appartement décoré à visiter ! Appartements Familiaux OGIC et SEDFIELD s'associent pour réaliser NOVA GREEN, une nouvelle résidence éligible à la TVA réduite 5,5% qui proposera des appartements neufs du studio au 5 pièces avec des prestations de qualité. NOVA GREEN s'élèvera à proximité des transports, des commerces et des établissements scolaires. Tous les logements seront prolongés par un balcon ou une terrasse, et certains d'entre eux profiteront d'orientations multiples. Au-delà des pièces de vie spacieuses et lumineuses, vous pourrez profiter d'un cadre de vie verdoyant grâce à un coeur d'ilot généreux offrant de nombreux espaces verts.

Autres logements T4 du programme "NOVA GREEN"

Disponibilité Prix Genre Pièces Surface Étage
Voir
Disponible
345 000€ Appt. T4 83.26m2 1er
Voir
Disponible
375 000€ Appt. T4 87.03m2 5ème
Voir
Disponible
349 000€ Appt. T4 80.26m2 6ème
DO NOT CLICK