223 000€ (TVA 20%)
196 054€ (TVA 5.5%)
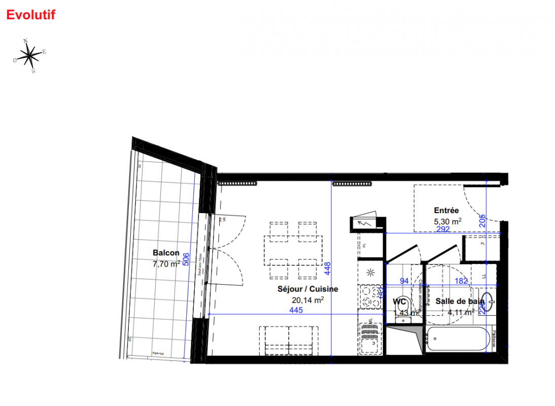
Appt. au 0-RDC
Studio
31 m²
-
Romainville (93230)
4ème trimestre 2028
01 81 80 39 10
Présentation du programme "ROOJ - COTEAU"
Rooj-Coteau à Romainville, un programme immobilier de deux résidences neuves au coeur du renouveau de la ZAC de l'Horloge.
Logements lumineux, double orientation, coeur d'îlot végétalisé et grands espaces extérieurs privatifs et vues dégagées.
La résidence tend vers le seuil 2028 de la réglementation environnementale 2020, ce qui signifie des logements qui consomment moins d'énergie : factures énergétiques plus faibles et logement plus performant dans le temps.
Performances environnementales élevées, matériaux durables, toitures végétalisées.
Dans un environnement naturel exceptionnel : Canal de l'Ourcq, Corniche des forts, futur jardin du Coteau Groupe scolaire neuf au pied du programme, place Jenny Alpha, marché des Bas-Pays, maison de santé, commerces de proximité sur la rue Gaston Roussel. À 10 min à pied du métro Ligne 5, et future arrivée du T Zen 3. Mobilités douces autour du Grand Chemin, nouvelle artère reliant la Corniche des Forts au canal de l'Ourcq. Un emplacement stratégique, dans un quartier en pleine transformation où la vie culturelle n'est pas en reste : Le Pavillon, médiathèque Romain-Rolland, l'annexe, le FRAC Ile-de-France...
Habiter le Coteau, c'est vivre entre ville et nature.
Autres logements Studio du programme "ROOJ - COTEAU"
| Disponibilité | Prix | No | Genre | Pièces | Surface | Étage | Disponibilité | Prix | ||
|---|---|---|---|---|---|---|---|---|---|---|
| Voir | Optionné | 202 000€ | E5 B13 | Appt. | Studio | 27.1m2 | 0-RDC | Optionné Mais pas encore vendu 😉 | 202 000€ | Voir |
| Voir | Disponible | 233 000€ | E5 A13 | Appt. | Studio | 30.4m2 | 1er | Disponible | 233 000€ | Voir |
| Voir | Disponible | 237 000€ | E5 A23 | Appt. | Studio | 30.6m2 | 2ème | Disponible | 237 000€ | Voir |
| Voir | Disponible | 243 000€ | E5 A43 | Appt. | Studio | 30.6m2 | 4ème | Disponible | 243 000€ | Voir |
| Voir | Disponible | 247 000€ | E5 A52 | Appt. | Studio | 30.6m2 | 5ème | Disponible | 247 000€ | Voir |
| Voir | Disponible | 227 000€ | E1 A205 | Appt. | Studio | 31m2 | 2ème | Disponible | 227 000€ | Voir |
| Voir | Disponible | 239 000€ | E5 A33 | Appt. | Studio | 31.7m2 | 3ème | Disponible | 239 000€ | Voir |