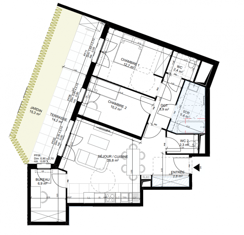
Prix
297 441€
297 441€
Type
Appt. au 0-RDC
Appt. au 0-RDC
Pièces
T3
T3
Surface
72.4 m²
72.4 m²
Exposition
-
-
Ville
Saint-Denis (93200)
Saint-Denis (93200)
Livraison
3ème trimestre 2027
3ème trimestre 2027
Informations
01 81 80 39 10
01 81 80 39 10
Présentation du programme "AMBRE"
"AMBRE", une nouvelle résidence signée Adastra, à seulement 4min à pied du T5 arrêt « Mairie de Pierrefitte » et à 10 min en bus de la Gare RER D arrêt « Pierrefitte-Stains ». Une adresse pratique, proche des commerces et de toutes les commodités. Découvrez une collection d'appartements neufs du studio au 4 pièces avec de très beaux espaces extérieurs : jardin, terrasse ou balcon (avec rangements extérieurs intégrés). Pour un confort optimal, les appartements profitent d’une double orientation. Parkings boxés en sous-sol.