319 789€ (TVA 20%)
281 148€ (TVA 5.5%)
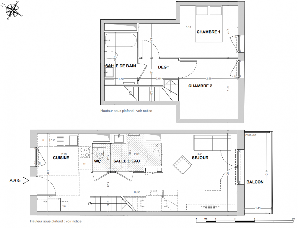
Appt. au 2ème
-
64.53 m²
-
Cergy (95000)
1er trimestre 2027
01 81 80 39 10
Présentation du programme "VIVAREA"
FRAIS DE NOTAIRE OFFERTS POUR VOTRE ACHAT ! * La résidence prend place dans le quartier des Doux-Épis de la Plaine des Linandes, au coeur de l'écoquartier "Le Domaine Grandes Terres". Située à 2 km du RER Cergy Saint-Christophe, votre future résidence neuve signée Crédit Agricole Immobilier et Spirit Immobilier profite de nombreux avantages : écoles (crèche, maternelle, collège), centre commercial, salle de cinéma, commerces, salle de spectacle... Vous disposez également d'un accès immédiat à l'Aren'Park, ses commerces et restaurants, ainsi qu'à de nombreux équipements sportifs et culturels : la patinoire Aren'Ice, le parc de loisirs indoor Koezio, le complexe sportif Salif-Keïta, des cours de tennis... La résidence propose des appartements neufs, du studio au 5 pièces, organisés autour d'espaces verts partagés. Des appartements neufs « prêts à vivre » où le confort des résidents domine. L'ensemble de ce projet immobilier est éligible à la TVA réduite à 5,5% et au prêt à taux zéro. Prix indiqué stationnement inclus et remise incluse. * Conditions détaillées en espace de vente. Contactez-nous dès maintenant !
Autres logements - du programme "VIVAREA"
Disponibilité | Prix | No | Genre | Pièces | Surface | Étage | Disponibilité | Prix | ||
---|---|---|---|---|---|---|---|---|---|---|
Voir | Optionné | 293 919€ | A101 | Appt. | - | 60.74m2 | 1er | Optionné Mais pas encore vendu 😉 | 293 919€ | Voir |
Voir | Disponible | 306 610€ | A304 | Appt. | - | 59.92m2 | 3ème | Disponible | 306 610€ | Voir |
Voir | Disponible | 310 560€ | A301 | Appt. | - | 60.49m2 | 3ème | Disponible | 310 560€ | Voir |
Voir | Disponible | 317 660€ | A216 DUPLEX | Appt. | - | 64.11m2 | 2ème | Disponible | 317 660€ | Voir |
Voir | Disponible | 325 559€ | A002 DUPLEX | Appt. | - | 72.18m2 | 0-RDC | Disponible | 325 559€ | Voir |
Voir | Disponible | 326 590€ | A302 | Appt. | - | 60.1m2 | 3ème | Disponible | 326 590€ | Voir |
Voir | Disponible | 344 129€ | A019 DUPLEX | Appt. | - | 76.42m2 | 0-RDC | Disponible | 344 129€ | Voir |
Voir | Optionné | 357 949€ | A204 DUPLEX | Appt. | - | 76.67m2 | 2ème | Optionné Mais pas encore vendu 😉 | 357 949€ | Voir |
Voir | Disponible | 321 600€ | C006 | Appt. | - | 68.46m2 | 0-RDC | Disponible | 321 600€ | Voir |
Voir | Disponible | 246 529€ | A201 | Appt. | - | 44.13m2 | 2ème | Disponible | 246 529€ | Voir |
Voir | Disponible | 348 629€ | A202 DUPLEX | Appt. | - | 72.08m2 Le bon plan | 2ème | Disponible | 348 629€ | Voir |