Prix
223 100€
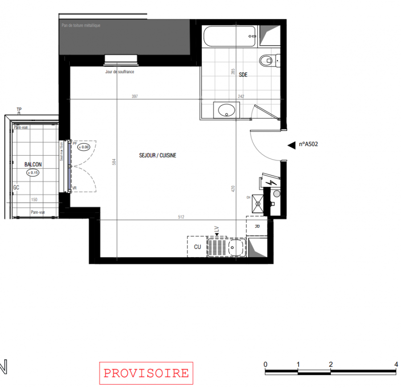
Type
Appt. au 5ème
Pièces
Studio
Surface
36.95 m²
Exposition
Ouest
Ville
Choisy-le-Roi (94600)
Livraison
2ème trimestre 2028
Informations
01 81 80 39 10

Présentation du programme "Programme neuf Choisy-le-Roi (94600)"

NOUVEAU à Choisy-le-Roi ! Soyez parmi les premiers à choisir votre appartement neuf avec espace extérieur et parking.Notre nouvelle adresse, en plein centre-ville, bénéficie d’une localisation privilégiée, offrant un accès direct à tous les essentiels du quotidien : supermarchés, restaurants, services, ainsi qu’un ensemble scolaire complet de la maternelle au lycée, à seulement quelques minutes à pied. Les bords de Seine ainsi que le parc de la Mairie situés tout proches de la résidence, offrent un environnement naturel propice aux promenades et aux activités en plein air. Côté transports, la gare RER C Choisy-le-Roi, accessible en seulement 7 min* à pied, relie Paris en quelques minutes. À cela s’ajoutent le tramway T9 au pied de la résidence et un large réseau de bus facilitant l’accès aux communes environnantes. Pour les amateurs de mobilité douce, la ville encourage les déplacements à vélo grâce à des pistes cyclables bien aménagées le long des berges et dans le centre-ville favorisant un mode de vie écologique et pratique. Notre résidence propose des appartements du 2 au 4 pièces, pensés pour offrir confort et modernité au quotidien. Chaque logement dispose d’un espace extérieur privatif – balcon, terrasse ou jardin privatif prolongeant ainsi l’espace de vie pour profiter pleinement du calme et de la verdure environnante. Des parkings en sous-sol ainsi qu’un local à vélos sont disponibles. Contactez dès maintenant un de nos conseillers pour découvrir tous nos appartements neufs à Choisy-le-Roi et être parmi les premiers à choisir le logement neuf de vos rêves aux portes de Paris !

Autres logements Studio du programme "Programme neuf Choisy-le-Roi (94600)"

Pas de logements disponibles
DO NOT CLICK