Prix
226 494€
Type
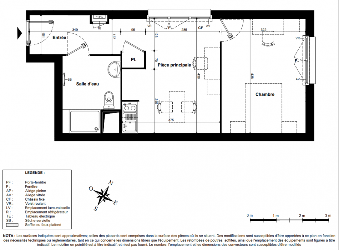
Appt. au 4ème
Pièces
T2
Surface
41.34 m²
Exposition
Est
Ville
Villeneuve-Saint-Georges (94190)
Livraison
2ème trimestre 2026
Informations
01 81 80 39 10

Présentation du programme "Villaneo 4"

Investissez à Villeneuve-Saint-Georges, une commune dynamique à 16 km de Paris !Situé aux portes de la Capitale, le Val-de-Marne est un territoire attractif qui fait partie de la métropole du Grand Paris en Île-de-France.Les activités économiques se sont développées dans les secteurs aéroportuaires, du tourisme, de la haute technologie, de la santé ou encore avec des centres hospitaliers d’excellence.Bordée par la Seine, Villeneuve-Saint-Georges est située proche des axes routiers et des transports en commun et compte plus de 35 000 habitants. La ville a entrepris un vaste plan de requalification des quartiers, la redynamisation du cœur de ville et la valorisation du patrimoine architectural. Le territoire offre un cadre de vie préservé où vitalité urbaine et calme de la nature se côtoient dans une parfaite harmonie, grâce aux nombreux lieux de détente et de promenade : 2600 hectares d’espaces verts, La Roseraie du Val-de-Marne, les coulées vertes, le Lac de Créteil, les bords de Marne avec les célèbres guinguettes.Une ville étudiante avec un potentiel locatif importantUn territoire qui attire de nombreux étudiants étrangers et français grâce au pôle universitaire de renom l’Université Paris XII (UPEC) et le CHU Henri-Mondor où la médecine est enseignée.Villeneuve-Saint-Georges est une ville urbaine et dynamique relativement jeune qui accueille plus de 2 800 étudiants.La commune se distingue par la richesse de sa vie culturelle et sportive : un conservatoire de musique, 2 bibliothèques, un théâtre, un espace d’exposition dédié à l’art contemporain, une piscine, 4 stades et 6 gymnases. Commodités et transportsUn réseau de transport en commun développé permet de rejoindre les universités et Paris facilement : 17 lignes de bus, RER D à moins de 10 minutes à pied, l’Université Paris-Est Créteil est à 40 minutes en transport. Le projet de téléphérique Câble 1 qui reliera Créteil à Villeneuve-Saint-Georges est prévu pour 2025.Emplacement idéal situé à proximité des axes routiers : N6 à 2 minutes et A86 à 9 minutes en voiture, aéroport d’Orly à 15 minutes en voiture.Les commerces et le centre-ville sont situés à moins de 10 minutes à pied.   Focus prestations/résidenceUne adresse sécurisée à l’architecture élégante et située dans un quartier en plein essor avec les commodités essentielles, facilement accessibles. Une résidence moderne qui offre 250 m² d’espaces communs : cafétéria, laverie, espace de coworking, buanderie, salle TV, salle de sport et ter...

Autres logements T2 du programme "Villaneo 4"

Pas de logements disponibles
DO NOT CLICK