Prix
403 000€
403 000€
Type
Appt. au 1er
Appt. au 1er
Pièces
T3
T3
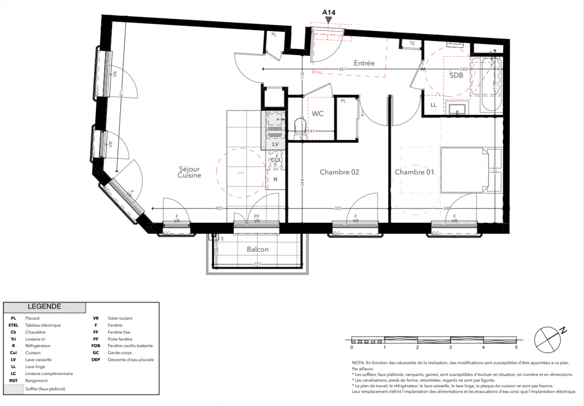
Surface
66.45 m²
66.45 m²
Exposition
-
-
Ville
Sartrouville (78500)
Sartrouville (78500)
Livraison
2ème trimestre 2028
2ème trimestre 2028
Informations
01 81 80 39 10
01 81 80 39 10
Présentation du programme "HORIZON"
DES PRESTATIONS HAUT DE GAMME
POUR UN CONFORT ABSOLU
La résidence HORIZON vous propose des prestations
de haute qualité pour un confort au quotidien. Le
chauffage et l’isolation répondent aux dernières normes énergétiques,
assurant une efficacité optimale et des économies d’énergie.
La sécurité n’est pas en reste avec un accès sécurisé par
vidéophone et badge, ainsi qu’un parking en sous-sol. Les espaces
verts paysagers offrent un véritable havre de paix au
coeur de la résidence, faisant d’HORIZON un lieu de
vie exceptionnel et privilégié.
Autres logements T3 du programme "HORIZON"
| Disponibilité | Prix | No | Genre | Pièces | Surface | Étage | Disponibilité | Prix | ||
|---|---|---|---|---|---|---|---|---|---|---|
| Voir | Disponible | 371 000€ | A02 | Appt. | T3 | 56.21m2 | 0-RDC | Disponible | 371 000€ | Voir |
| Voir | Disponible | 346 700€ | A12 | Appt. | T3 | 56.2m2 | 1er | Disponible | 346 700€ | Voir |
| Voir | Optionné | 435 000€ | A23 | Appt. | T3 | 67.86m2 | 2ème | Optionné Mais pas encore vendu 😉 | 435 000€ | Voir |
| Voir | Disponible | 385 000€ | B13 | Appt. | T3 | 63.22m2 | 1er | Disponible | 385 000€ | Voir |