439 000€
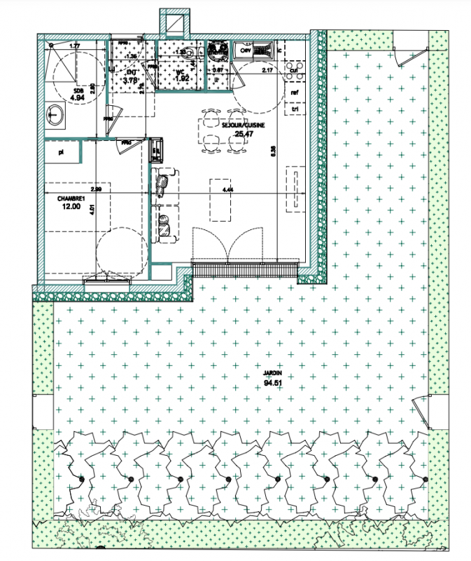
Appt. au 0-RDC
T2
48.11 m²
Est
Benerville-sur-Mer (14910)
4ème trimestre 2028
01 81 80 39 10
Présentation du programme "VILLAS GABRIEL 1"
A 2 heures de Paris en voiture, la résidence VILLAS GABRIEL vous accueille dans un cadre exceptionnel du littoral normand, au cœur de la charmante station de Bénerville-sur-Mer. Nichée à 300 m de la plage et à seulement 2 km du centre de Deauville, cette nouvelle réalisation offre tous les avantages d’un investissement pérenne entre mer et prestige. Festival, casino, courses hippiques, shopping et moments de détente sur la célèbre promenade des planches, ici c’est toute l’effervescence de Deauville qui s’offre à votre porte. Située à l’angle de la rue Gaston Gallimard et de la rue Cornier, la résidence VILLAS GABRIEL se pare d’une élégante architecture néo-normande, parfaitement intégrée dans l’environnement de ce quartier calme et verdoyant de Bénerville-sur-Mer. Répartis sur trois bâtiments, les appartements de standing déclinés du studio au 5 pièces présentent des volumes fonctionnels et lumineux, tous prolongés d’un balcon, d’une terrasse ou d’un jardin privatif. Chaque intérieur bénéficie de prestations de confort soignées, associées à des matériaux de qualité et à une isolation thermique et acoustique performante. Au sous-sol, la résidence abrite des parkings privatifs et des locaux à vélos sécurisés.
Que ce soit pour y vivre à l’année, profiter d’une résidence secondaire ou réaliser un investissement locatif saisonnier, ce programme répond aux attentes d’une clientèle exigeante, en quête d’un art de vivre où raffinement et sérénité se conjuguent au quotidien. Soyez parmi les premiers à choisir cette adresse rare de Bénerville-sur-Mer en nous contactant au 01 81 80 39 10.
Autres logements T2 du programme "VILLAS GABRIEL 1"
| Disponibilité | Prix | No | Genre | Pièces | Surface | Étage | Disponibilité | Prix | ||
|---|---|---|---|---|---|---|---|---|---|---|
| Voir | Disponible | 412 000€ | 1002 | Appt. | T2 | 50.28m2 | 0-RDC | Disponible | 412 000€ | Voir |
| Voir | Disponible | 374 000€ | 1104 | Appt. | T2 | 46.56m2 | 1er | Disponible | 374 000€ | Voir |
| Voir | Disponible | 401 000€ | 1105 | Appt. | T2 | 48.88m2 | 1er | Disponible | 401 000€ | Voir |
| Voir | Disponible | 383 000€ | 1204 | Appt. | T2 | 46.56m2 | 2ème | Disponible | 383 000€ | Voir |
| Voir | Disponible | 410 000€ | 1205 | Appt. | T2 | 48.88m2 | 2ème | Disponible | 410 000€ | Voir |
| Voir | Disponible | 387 000€ | 1304 | Appt. | T2 | 44.39m2 | 3ème | Disponible | 387 000€ | Voir |
| Voir | Optionné | 350 000€ | 2006 | Appt. | T2 | 42.07m2 | 0-RDC | Optionné Mais pas encore vendu 😉 | 350 000€ | Voir |
| Voir | Disponible | 457 000€ | 2007 | Appt. | T2 | 56.25m2 | 0-RDC | Disponible | 457 000€ | Voir |
| Voir | Optionné | 253 000€ | 1001 | Appt. | T2 | 47.38m2 | 0-RDC | Optionné Mais pas encore vendu 😉 | 253 000€ | Voir |