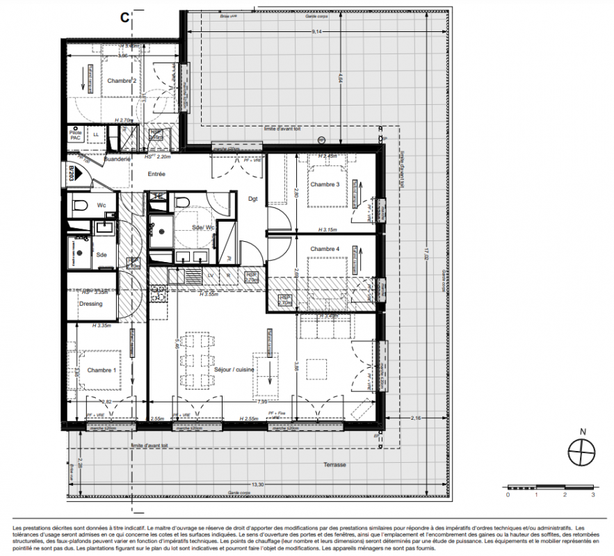
Prix
840 000€
840 000€
Type
Appt. au 0-RDC
Appt. au 0-RDC
Pièces
T5
T5
Surface
113.9 m²
113.9 m²
Exposition
-
-
Ville
La Teste-de-Buch (33260)
La Teste-de-Buch (33260)
Livraison
2ème trimestre 2027
2ème trimestre 2027
Informations
01 81 80 39 10
01 81 80 39 10
Présentation du programme "ASSALIDA"
Programme neuf La Teste-de-Buch - 33260


