Ce lot n’est plus disponible chez VIANOVA ou est vendu.
Vous pouvez revenir dans 24h pour vérifier le stock à jour ou contacter un conseiller Vianova pour vérifier le stock en direct.
Vous pouvez également continuer votre recherche sur notre site « ici ».
155 613€
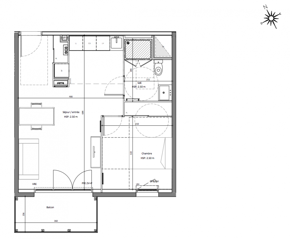
Appt. au 0-RDC
T2
44.44 m²
-
Lormont (33310)
4ème trimestre 2027
01 81 80 39 10
Présentation du programme "Hubline"
LORMONT, APPARTEMENTS NEUFS DU 2 AU 4 PIECES A 10MIN* EN TRAM DE BORDEAUX
Entre nature, dynamisme et proximité avec Bordeaux
À la fois porte d’entrée de la métropole bordelaise et véritable ville à part entière, Lormont offre un équilibre rare entre urbanité et nature. Bordée par la Garonne et adossée aux coteaux boisés, la commune bénéficie d’un cadre de vie vert, ponctué de parcs, promenades et belvédères. Elle séduit autant les familles que les jeunes actifs par son accès direct à Bordeaux via le tramway A, ses infrastructures scolaires et sportives modernes, et la richesse de sa vie locale : marchés, médiathèque, espaces culturels, associations et événements de quartier. Fidèle à son histoire industrielle et ouvrière, Lormont s’est métamorphosée en une ville dynamique et inclusive, ouverte à l’innovation urbaine et à la mixité. C’est aujourd’hui une adresse idéale pour ceux qui cherchent à devenir propriétaires tout en profitant d’un cadre de vie connecté.
Une nouvelle dynamique urbaine au cœur de la rive droite
Nichée sur les hauteurs de la rive droite bordelaise, Lormont s’impose comme l’un des secteurs les plus en mouvement de la métropole. Autour de la rue des Garosses, le quartier a connu une profonde restructuration urbaine : nouveaux commerces, résidences modernes, espaces partagés et services de proximité redessinent entièrement le paysage. Aujourd’hui, ce secteur réhabilité allie vitalité et qualité de vie, avec un supermarché Aldi, une pharmacie, des résidences étudiantes et seniors, des bureaux contemporains et des espaces de coworking qui participent à la vie du quartier. Cette mixité d’usages crée un véritable lieu de vie, convivial et pratique, à quelques minutes seulement du centre de Bordeaux grâce au tramway A et à l’accès rapide à la rocade.
Hubline, Une résidence pensée pour la vie d’aujourd’hui
Hubline propose des appartements du 2 au 4 pièces, fonctionnels et lumineux, dotés de cuisines aménagées et de belles ouvertures extérieures : balcons, loggias ou terrasses selon les typologies. Les agencements ont été pensés pour optimiser chaque mètre carré et garantir une vraie qualité de vie : séjour convivial, espace nuit préservé, rangements bien intégrés et matériaux choisis avec soin. Les prestations assurent un confort durable : menuiseries performantes, chauffage individuel, stationnements sécurisés, locaux à vélos, et des espaces communs pensés pour le quotidien des familles.
L’alliance du confort et de l’accessibilité
Éligible
Autres logements T2 du programme "Hubline"
| Disponibilité | Prix | No | Genre | Pièces | Surface | Étage | Disponibilité | Prix | ||
|---|---|---|---|---|---|---|---|---|---|---|
| Voir | Disponible | 160 008€ | 504 | Appt. | T2 | 44.44m2 | 0-RDC | Disponible | 160 008€ | Voir |
| Voir | Disponible | 157 371€ | 501 | Appt. | T2 | 43.86m2 | 0-RDC | Disponible | 157 371€ | Voir |
| Voir | Disponible | 156 492€ | 408 | Appt. | T2 | 44.42m2 | 0-RDC | Disponible | 156 492€ | Voir |
| Voir | Disponible | 150 338€ | 509 | Appt. | T2 | 41.94m2 | 0-RDC | Disponible | 150 338€ | Voir |
| Voir | Disponible | 159 129€ | 506 | Appt. | T2 | 43.85m2 | 0-RDC | Disponible | 159 129€ | Voir |
| Voir | Disponible | 161 767€ | 608 | Appt. | T2 | 44.42m2 | 0-RDC | Disponible | 161 767€ | Voir |
| Voir | Disponible | 154 733€ | 401 | Appt. | T2 | 43.86m2 | 0-RDC | Disponible | 154 733€ | Voir |
| Voir | Disponible | 159 129€ | 508 | Appt. | T2 | 44.42m2 | 0-RDC | Disponible | 159 129€ | Voir |
| Voir | Disponible | 152 975€ | 609 | Appt. | T2 | 41.94m2 | 0-RDC | Disponible | 152 975€ | Voir |