Prix
279 300€
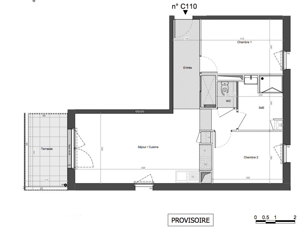
Type
Appt. au 1er
Pièces
T3
Surface
62.16 m²
Exposition
Sud-Ouest
Ville
Nantes (44000)
Livraison
4ème trimestre 2027
Informations
01 81 80 39 10

Présentation du programme "Programme neuf Nantes (44000)"

NOUVEAU à NANTES ! Soyez parmi les premiers à choisir votre appartement neuf du 2 au 4 pièces avec extérieur et parking ! C'est dans le cadre naturel d'une zone boisée à proximité des rives de l'Erdre que prend place notre nouvelle résidence. Baignés de lumière naturelle, les appartements du 2 au 4 pièces, sont tous prolongés par un espace extérieur bien exposé et profitent pour la plupart d_une double orientation. Répartis sur 3 petits bâtiments de 2 étages seulement, ils bénéficient d'un accès facile au périphérique et aux transports (bus, voie cyclable).Une situation idéale pour une vie en famille ou pour un investissement locatif à Nantes.Contactez-vite un de nos conseillers pour concrétiser votre projet immobilier neuf à NANTES !

Autres logements T3 du programme "Programme neuf Nantes (44000)"

Disponibilité Prix Genre Pièces Surface Étage
Voir
Disponible
308 900€ Appt. T3 67.59m2 0-RDC
Voir
Disponible
261 200€ Appt. T3 58.62m2
Le bon plan
0-RDC
DO NOT CLICK