Prix
245 000€
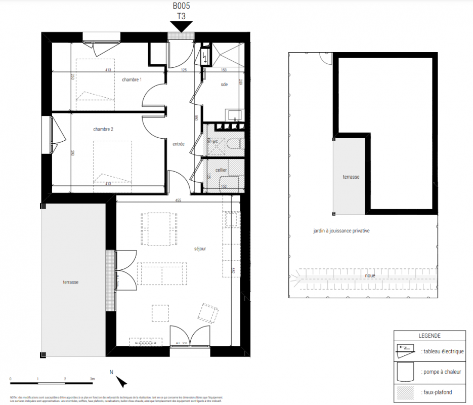
Type
Appt. au 0-RDC
Pièces
T3
Surface
61.89 m²
Exposition
-
Ville
Savenay (44260)
Livraison
2ème trimestre 2028
Informations
01 81 80 39 10

Présentation du programme "LE BOIS DES AMOURETTES"

Nouveau programme immobilier neuf à Savenay - Résidence du Bois des AmourettesVous rêvez d’un logement neuf au calme, entouré de verdure, à deux pas du centre-ville ? Découvrez bientôt la Résidence du Bois des Amourettes, un nouveau programme immobilier à Savenay signé Presqu’île Investissement.Située dans un quartier résidentiel paisible, à seulement quelques minutes à pied des écoles, commerces, équipements sportifs et de la gare SNCF, cette résidence intimiste de 30 logements propose des appartements neufs du T2 au T3, avec balcons spacieux ou jardins privatifs. Chaque logement est traversant, lumineux, et conçu dans une démarche de haute qualité environnementale conforme à la RE2020 seuil 2025.Au cœur d’un environnement boisé, entre clairière centrale, buttes végétalisées préservées et prairies partagées, la nature est omniprésente. Le stationnement est volontairement repoussé en lisière, pour laisser place aux circulations douces et préserver la tranquillité du site.Des logements durables et éco-conçus, construits avec des matériaux biosourcés, pensés pour le confort de vie, la performance énergétique et la préservation de la biodiversité.Pourquoi choisir Savenay pour vivre ou investir ?Entre Nantes et Saint-Nazaire, la ville de Savenay offre un emplacement stratégique, une qualité de vie rare, un tissu économique dynamique et un réseau de transport performant. Idéal pour les familles, les jeunes actifs ou les investisseurs, Savenay séduit par son équilibre entre nature, services, mobilité et opportunités.Un projet porté par une entreprise familiale ancrée dans son territoireDepuis plus de 60 ans, le groupe Jean Guéno construit et développe des projets durables en Loire-Atlantique. En 1997, la création de Presqu’île Investissement a marqué une nouvelle étape : celle de la promotion immobilière au service des habitants, avec proximité, engagement local et esprit de famille.Lancement commercial imminent Inscrivez-vous pour être informé(e) en avant-première et profiter d’une opportunité rare sur le marché immobilier de Savenay.Contact : 02 40 24 88 59

Autres logements T3 du programme "LE BOIS DES AMOURETTES"

Disponibilité Prix Genre Pièces Surface Étage
Voir
Disponible
277 000€ Appt. T3 64.92m2 3ème
Voir
Disponible
274 000€ Appt. T3 64.16m2 3ème
Voir
Optionné
245 000€ Appt. T3 62.53m2 0-RDC
Voir
Disponible
251 000€ Appt. T3 61.76m2 1er
Voir
Disponible
250 000€ Appt. T3 62.74m2 1er
Voir
Disponible
252 000€ Appt. T3 61.9m2 2ème
Voir
Disponible
251 000€ Appt. T3 62.73m2 2ème
Voir
Disponible
273 000€ Appt. T3 64m2 3ème
Voir
Disponible
275 000€ Appt. T3 64.23m2 3ème
DO NOT CLICK