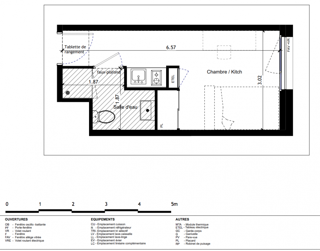
109 200€
Appt. au 1er
Studio
18.34 m²
Sud
Angers (49000)
2ème trimestre 2029
01 81 80 39 10
Présentation du programme "STUDENT FACTORY ANGERS - MONTAIGNE"
IDÉAL INVESTISSEURS ! Profitez d’une fiscalité attractive grâce au statut LMNP, vous permettant de bénéficier de compléments de revenus et d’un investissement sécurisé dans un marché porteur !Avec ses 195 logements entièrement équipés, la résidence de services étudiante STUDENT FACTORY ANGERS - MONTAIGNE propose un lieu de vie pensé pour le bien-être et la réussite de ses occupants : espaces communs dédiés aux études, services pratiques au quotidien et lieux de convivialité favorisant les échanges. Ville universitaire majeure avec plus de 46 000 étudiants et plus de 20 établissements d’enseignement supérieur, Angers se distingue par son dynamisme, sa qualité de vie et son attractivité.Réputée pour ses espaces verts, son centre-ville animé et son réseau de transports performant, la ville offre un environnement idéal pour une vie étudiante facilitée. Idéalement située Rue Joseph Cussonneau, au cœur du nouveau Quartier Montaigne, la résidence bénéficie d’un emplacement stratégique face au tramway Montaigne et à seulement 15 min. des principaux campus et facultés. À proximité immédiate du centre commercial Espace Anjou, d’infrastructures sportives et d’espaces verts, elle offre également un accès rapide aux grands axes routiers (A87 / A11).Un environnement connecté, pratique et attractif, parfaitement adapté aux attentes des étudiants comme aux exigences des investisseurs.
Autres logements Studio du programme "STUDENT FACTORY ANGERS - MONTAIGNE"
| Disponibilité | Prix | No | Genre | Pièces | Surface | Étage | Disponibilité | Prix | ||
|---|---|---|---|---|---|---|---|---|---|---|
| Voir | Optionné | 98 400€ | LA001 | Appt. | Studio | 19.16m2 | 0-RDC | Optionné Mais pas encore vendu 😉 | 98 400€ | Voir |
| Voir | Disponible | 108 201€ | LA002 | Appt. | Studio | 18.34m2 | 0-RDC | Disponible | 108 201€ | Voir |
| Voir | Disponible | 108 201€ | LA003 | Appt. | Studio | 18.34m2 | 0-RDC | Disponible | 108 201€ | Voir |
| Voir | Disponible | 108 201€ | LA004 | Appt. | Studio | 18.34m2 | 0-RDC | Disponible | 108 201€ | Voir |
| Voir | Disponible | 108 201€ | LA005 | Appt. | Studio | 18.34m2 | 0-RDC | Disponible | 108 201€ | Voir |
| Voir | Disponible | 108 201€ | LA006 | Appt. | Studio | 18.34m2 | 0-RDC | Disponible | 108 201€ | Voir |
| Voir | Disponible | 108 201€ | LA007 | Appt. | Studio | 18.34m2 | 0-RDC | Disponible | 108 201€ | Voir |
| Voir | Disponible | 103 200€ | LA008 | Appt. | Studio | 18.34m2 | 0-RDC | Disponible | 103 200€ | Voir |
| Voir | Disponible | 103 200€ | LA009 | Appt. | Studio | 18.34m2 | 0-RDC | Disponible | 103 200€ | Voir |
| Voir | Disponible | 103 200€ | LA010 | Appt. | Studio | 18.34m2 | 0-RDC | Disponible | 103 200€ | Voir |
| Voir | Disponible | 100 800€ | LA011 | Appt. | Studio | 19.85m2 | 0-RDC | Disponible | 100 800€ | Voir |
| Voir | Disponible | 105 801€ | LA012 | Appt. | Studio | 18.9m2 | 0-RDC | Disponible | 105 801€ | Voir |
| Voir | Disponible | 105 801€ | LA013 | Appt. | Studio | 18.34m2 | 0-RDC | Disponible | 105 801€ | Voir |
| Voir | Disponible | 105 801€ | LA014 | Appt. | Studio | 18.34m2 | 0-RDC | Disponible | 105 801€ | Voir |
| Voir | Disponible | 105 801€ | LA015 | Appt. | Studio | 18.34m2 | 0-RDC | Disponible | 105 801€ | Voir |
| Voir | Disponible | 100 800€ | LA016 | Appt. | Studio | 18.34m2 | 0-RDC | Disponible | 100 800€ | Voir |
| Voir | Disponible | 100 800€ | LA017 | Appt. | Studio | 18.34m2 | 0-RDC | Disponible | 100 800€ | Voir |
| Voir | Disponible | 100 800€ | LA018 | Appt. | Studio | 18.34m2 | 0-RDC | Disponible | 100 800€ | Voir |
| Voir | Disponible | 104 601€ | LA019 | Appt. | Studio | 21.22m2 | 0-RDC | Disponible | 104 601€ | Voir |
| Voir | Disponible | 107 001€ | LA101 | Appt. | Studio | 22.09m2 Le bon plan | 1er | Disponible | 107 001€ | Voir |
| Voir | Disponible | 105 600€ | LA102 | Appt. | Studio | 18.34m2 | 1er | Disponible | 105 600€ | Voir |
| Voir | Disponible | 105 600€ | LA103 | Appt. | Studio | 18.34m2 | 1er | Disponible | 105 600€ | Voir |
| Voir | Disponible | 105 600€ | LA104 | Appt. | Studio | 18.34m2 | 1er | Disponible | 105 600€ | Voir |
| Voir | Disponible | 105 600€ | LA105 | Appt. | Studio | 18.34m2 | 1er | Disponible | 105 600€ | Voir |
| Voir | Disponible | 105 600€ | LA106 | Appt. | Studio | 18.34m2 | 1er | Disponible | 105 600€ | Voir |
| Voir | Disponible | 105 600€ | LA107 | Appt. | Studio | 18.34m2 | 1er | Disponible | 105 600€ | Voir |
| Voir | Disponible | 105 600€ | LA108 | Appt. | Studio | 18.34m2 | 1er | Disponible | 105 600€ | Voir |
| Voir | Disponible | 100 800€ | LA109 | Appt. | Studio | 17.88m2 | 1er | Disponible | 100 800€ | Voir |
| Voir | Optionné | 108 201€ | LA110 | Appt. | Studio | 21.42m2 | 1er | Optionné Mais pas encore vendu 😉 | 108 201€ | Voir |
| Voir | Disponible | 104 400€ | LA111 | Appt. | Studio | 18.02m2 | 1er | Disponible | 104 400€ | Voir |
| Voir | Disponible | 106 800€ | LA112 | Appt. | Studio | 18.34m2 | 1er | Disponible | 106 800€ | Voir |
| Voir | Disponible | 106 800€ | LA113 | Appt. | Studio | 18.34m2 | 1er | Disponible | 106 800€ | Voir |
| Voir | Disponible | 106 800€ | LA114 | Appt. | Studio | 18.34m2 | 1er | Disponible | 106 800€ | Voir |
| Voir | Disponible | 106 800€ | LA115 | Appt. | Studio | 18.34m2 | 1er | Disponible | 106 800€ | Voir |
| Voir | Disponible | 106 800€ | LA116 | Appt. | Studio | 18.34m2 | 1er | Disponible | 106 800€ | Voir |
| Voir | Disponible | 106 800€ | LA117 | Appt. | Studio | 18.34m2 | 1er | Disponible | 106 800€ | Voir |
| Voir | Disponible | 106 800€ | LA118 | Appt. | Studio | 18.34m2 | 1er | Disponible | 106 800€ | Voir |
| Voir | Disponible | 106 800€ | LA119 | Appt. | Studio | 18.34m2 | 1er | Disponible | 106 800€ | Voir |
| Voir | Disponible | 105 600€ | LA120 | Appt. | Studio | 19.22m2 | 1er | Disponible | 105 600€ | Voir |
| Voir | Disponible | 109 200€ | LA121 | Appt. | Studio | 18.34m2 | 1er | Disponible | 109 200€ | Voir |
| Voir | Disponible | 109 200€ | LA122 | Appt. | Studio | 18.34m2 | 1er | Disponible | 109 200€ | Voir |
| Voir | Disponible | 109 200€ | LA123 | Appt. | Studio | 18.34m2 | 1er | Disponible | 109 200€ | Voir |
| Voir | Disponible | 109 200€ | LA124 | Appt. | Studio | 18.34m2 | 1er | Disponible | 109 200€ | Voir |
| Voir | Disponible | 109 200€ | LA126 | Appt. | Studio | 18.34m2 | 1er | Disponible | 109 200€ | Voir |
| Voir | Disponible | 109 200€ | LA127 | Appt. | Studio | 18.34m2 | 1er | Disponible | 109 200€ | Voir |
| Voir | Disponible | 109 200€ | LA128 | Appt. | Studio | 18.34m2 | 1er | Disponible | 109 200€ | Voir |
| Voir | Disponible | 109 200€ | LA129 | Appt. | Studio | 18.34m2 | 1er | Disponible | 109 200€ | Voir |
| Voir | Disponible | 109 200€ | LA130 | Appt. | Studio | 18.34m2 | 1er | Disponible | 109 200€ | Voir |
| Voir | Disponible | 109 200€ | LA131 | Appt. | Studio | 18.34m2 | 1er | Disponible | 109 200€ | Voir |
| Voir | Optionné | 109 200€ | LA132 | Appt. | Studio | 18.72m2 | 1er | Optionné Mais pas encore vendu 😉 | 109 200€ | Voir |
| Voir | Disponible | 115 401€ | LA133 | Appt. | Studio | 23.03m2 | 1er | Disponible | 115 401€ | Voir |
| Voir | Disponible | 105 600€ | LA134 | Appt. | Studio | 18.34m2 | 1er | Disponible | 105 600€ | Voir |
| Voir | Disponible | 105 600€ | LA135 | Appt. | Studio | 18.34m2 | 1er | Disponible | 105 600€ | Voir |
| Voir | Disponible | 105 600€ | LA136 | Appt. | Studio | 18.34m2 | 1er | Disponible | 105 600€ | Voir |
| Voir | Disponible | 105 600€ | LA137 | Appt. | Studio | 18.34m2 | 1er | Disponible | 105 600€ | Voir |
| Voir | Disponible | 105 600€ | LA138 | Appt. | Studio | 18.34m2 | 1er | Disponible | 105 600€ | Voir |
| Voir | Disponible | 105 600€ | LA139 | Appt. | Studio | 18.34m2 | 1er | Disponible | 105 600€ | Voir |
| Voir | Disponible | 105 600€ | LA140 | Appt. | Studio | 18.34m2 | 1er | Disponible | 105 600€ | Voir |
| Voir | Disponible | 105 600€ | LA141 | Appt. | Studio | 18.34m2 | 1er | Disponible | 105 600€ | Voir |
| Voir | Disponible | 107 001€ | LA142 | Appt. | Studio | 21.22m2 | 1er | Disponible | 107 001€ | Voir |
| Voir | Disponible | 108 000€ | LA201 | Appt. | Studio | 22.09m2 | 2ème | Disponible | 108 000€ | Voir |
| Voir | Disponible | 109 200€ | LA202 | Appt. | Studio | 18.34m2 | 2ème | Disponible | 109 200€ | Voir |
| Voir | Disponible | 109 200€ | LA203 | Appt. | Studio | 18.34m2 | 2ème | Disponible | 109 200€ | Voir |
| Voir | Disponible | 109 200€ | LA204 | Appt. | Studio | 18.34m2 | 2ème | Disponible | 109 200€ | Voir |
| Voir | Disponible | 109 200€ | LA205 | Appt. | Studio | 18.34m2 | 2ème | Disponible | 109 200€ | Voir |
| Voir | Disponible | 109 200€ | LA206 | Appt. | Studio | 18.34m2 | 2ème | Disponible | 109 200€ | Voir |
| Voir | Disponible | 109 200€ | LA207 | Appt. | Studio | 18.34m2 | 2ème | Disponible | 109 200€ | Voir |
| Voir | Disponible | 109 200€ | LA208 | Appt. | Studio | 18.34m2 | 2ème | Disponible | 109 200€ | Voir |
| Voir | Disponible | 104 400€ | LA209 | Appt. | Studio | 17.88m2 | 2ème | Disponible | 104 400€ | Voir |
| Voir | Disponible | 111 801€ | LA210 | Appt. | Studio | 21.42m2 | 2ème | Disponible | 111 801€ | Voir |
| Voir | Disponible | 110 400€ | LA211 | Appt. | Studio | 18.02m2 | 2ème | Disponible | 110 400€ | Voir |
| Voir | Disponible | 110 400€ | LA212 | Appt. | Studio | 18.34m2 | 2ème | Disponible | 110 400€ | Voir |
| Voir | Disponible | 110 400€ | LA213 | Appt. | Studio | 18.34m2 | 2ème | Disponible | 110 400€ | Voir |
| Voir | Disponible | 110 400€ | LA214 | Appt. | Studio | 18.34m2 | 2ème | Disponible | 110 400€ | Voir |
| Voir | Disponible | 110 400€ | LA215 | Appt. | Studio | 18.34m2 | 2ème | Disponible | 110 400€ | Voir |
| Voir | Disponible | 110 400€ | LA216 | Appt. | Studio | 18.34m2 | 2ème | Disponible | 110 400€ | Voir |
| Voir | Disponible | 110 400€ | LA217 | Appt. | Studio | 18.34m2 | 2ème | Disponible | 110 400€ | Voir |
| Voir | Disponible | 110 400€ | LA218 | Appt. | Studio | 18.34m2 | 2ème | Disponible | 110 400€ | Voir |
| Voir | Disponible | 110 400€ | LA219 | Appt. | Studio | 18.34m2 | 2ème | Disponible | 110 400€ | Voir |
| Voir | Disponible | 114 201€ | LA220 | Appt. | Studio | 19.22m2 | 2ème | Disponible | 114 201€ | Voir |
| Voir | Disponible | 111 600€ | LA221 | Appt. | Studio | 18.34m2 | 2ème | Disponible | 111 600€ | Voir |
| Voir | Disponible | 111 600€ | LA222 | Appt. | Studio | 18.34m2 | 2ème | Disponible | 111 600€ | Voir |
| Voir | Disponible | 111 600€ | LA223 | Appt. | Studio | 18.34m2 | 2ème | Disponible | 111 600€ | Voir |
| Voir | Disponible | 111 600€ | LA224 | Appt. | Studio | 18.34m2 | 2ème | Disponible | 111 600€ | Voir |
| Voir | Disponible | 111 600€ | LA225 | Appt. | Studio | 18.34m2 | 2ème | Disponible | 111 600€ | Voir |
| Voir | Disponible | 111 600€ | LA226 | Appt. | Studio | 18.34m2 | 2ème | Disponible | 111 600€ | Voir |
| Voir | Disponible | 111 600€ | LA227 | Appt. | Studio | 18.34m2 | 2ème | Disponible | 111 600€ | Voir |
| Voir | Disponible | 111 600€ | LA228 | Appt. | Studio | 18.34m2 | 2ème | Disponible | 111 600€ | Voir |
| Voir | Disponible | 111 600€ | LA229 | Appt. | Studio | 18.34m2 | 2ème | Disponible | 111 600€ | Voir |
| Voir | Disponible | 111 600€ | LA230 | Appt. | Studio | 18.34m2 | 2ème | Disponible | 111 600€ | Voir |
| Voir | Disponible | 111 600€ | LA231 | Appt. | Studio | 18.34m2 | 2ème | Disponible | 111 600€ | Voir |
| Voir | Optionné | 111 600€ | LA232 | Appt. | Studio | 18.72m2 | 2ème | Optionné Mais pas encore vendu 😉 | 111 600€ | Voir |
| Voir | Disponible | 117 801€ | LA233 | Appt. | Studio | 23.04m2 | 2ème | Disponible | 117 801€ | Voir |
| Voir | Disponible | 108 000€ | LA234 | Appt. | Studio | 18.34m2 | 2ème | Disponible | 108 000€ | Voir |
| Voir | Disponible | 108 000€ | LA235 | Appt. | Studio | 18.34m2 | 2ème | Disponible | 108 000€ | Voir |
| Voir | Disponible | 108 000€ | LA236 | Appt. | Studio | 18.34m2 | 2ème | Disponible | 108 000€ | Voir |
| Voir | Disponible | 108 000€ | LA237 | Appt. | Studio | 18.34m2 | 2ème | Disponible | 108 000€ | Voir |
| Voir | Disponible | 108 000€ | LA238 | Appt. | Studio | 18.34m2 | 2ème | Disponible | 108 000€ | Voir |
| Voir | Disponible | 108 000€ | LA239 | Appt. | Studio | 18.34m2 | 2ème | Disponible | 108 000€ | Voir |
| Voir | Disponible | 108 000€ | LA240 | Appt. | Studio | 18.34m2 | 2ème | Disponible | 108 000€ | Voir |
| Voir | Disponible | 108 000€ | LA241 | Appt. | Studio | 18.34m2 | 2ème | Disponible | 108 000€ | Voir |
| Voir | Disponible | 109 401€ | LA242 | Appt. | Studio | 21.22m2 | 2ème | Disponible | 109 401€ | Voir |
| Voir | Disponible | 111 801€ | LA301 | Appt. | Studio | 22.09m2 | 3ème | Disponible | 111 801€ | Voir |
| Voir | Disponible | 111 600€ | LA302 | Appt. | Studio | 18.34m2 | 3ème | Disponible | 111 600€ | Voir |
| Voir | Disponible | 111 600€ | LA303 | Appt. | Studio | 18.34m2 | 3ème | Disponible | 111 600€ | Voir |
| Voir | Disponible | 111 600€ | LA304 | Appt. | Studio | 18.34m2 | 3ème | Disponible | 111 600€ | Voir |
| Voir | Disponible | 111 600€ | LA305 | Appt. | Studio | 18.34m2 | 3ème | Disponible | 111 600€ | Voir |
| Voir | Disponible | 111 600€ | LA306 | Appt. | Studio | 18.34m2 | 3ème | Disponible | 111 600€ | Voir |
| Voir | Disponible | 111 600€ | LA307 | Appt. | Studio | 18.34m2 | 3ème | Disponible | 111 600€ | Voir |
| Voir | Disponible | 111 600€ | LA308 | Appt. | Studio | 18.34m2 | 3ème | Disponible | 111 600€ | Voir |
| Voir | Disponible | 106 800€ | LA309 | Appt. | Studio | 17.88m2 | 3ème | Disponible | 106 800€ | Voir |
| Voir | Disponible | 114 201€ | LA310 | Appt. | Studio | 21.42m2 | 3ème | Disponible | 114 201€ | Voir |
| Voir | Disponible | 112 800€ | LA311 | Appt. | Studio | 18.02m2 | 3ème | Disponible | 112 800€ | Voir |
| Voir | Disponible | 112 800€ | LA312 | Appt. | Studio | 18.34m2 | 3ème | Disponible | 112 800€ | Voir |
| Voir | Disponible | 112 800€ | LA313 | Appt. | Studio | 18.34m2 | 3ème | Disponible | 112 800€ | Voir |
| Voir | Disponible | 112 800€ | LA314 | Appt. | Studio | 18.34m2 | 3ème | Disponible | 112 800€ | Voir |
| Voir | Disponible | 112 800€ | LA315 | Appt. | Studio | 18.34m2 | 3ème | Disponible | 112 800€ | Voir |
| Voir | Disponible | 112 800€ | LA316 | Appt. | Studio | 18.34m2 | 3ème | Disponible | 112 800€ | Voir |
| Voir | Disponible | 112 800€ | LA317 | Appt. | Studio | 18.34m2 | 3ème | Disponible | 112 800€ | Voir |
| Voir | Disponible | 112 800€ | LA318 | Appt. | Studio | 18.34m2 | 3ème | Disponible | 112 800€ | Voir |
| Voir | Disponible | 112 800€ | LA319 | Appt. | Studio | 18.34m2 | 3ème | Disponible | 112 800€ | Voir |
| Voir | Disponible | 111 600€ | LA320 | Appt. | Studio | 19.22m2 | 3ème | Disponible | 111 600€ | Voir |
| Voir | Disponible | 114 000€ | LA321 | Appt. | Studio | 18.34m2 | 3ème | Disponible | 114 000€ | Voir |
| Voir | Disponible | 114 000€ | LA322 | Appt. | Studio | 18.34m2 | 3ème | Disponible | 114 000€ | Voir |
| Voir | Disponible | 114 000€ | LA323 | Appt. | Studio | 18.34m2 | 3ème | Disponible | 114 000€ | Voir |
| Voir | Disponible | 114 000€ | LA324 | Appt. | Studio | 18.34m2 | 3ème | Disponible | 114 000€ | Voir |
| Voir | Disponible | 114 000€ | LA325 | Appt. | Studio | 18.34m2 | 3ème | Disponible | 114 000€ | Voir |
| Voir | Disponible | 114 000€ | LA326 | Appt. | Studio | 18.34m2 | 3ème | Disponible | 114 000€ | Voir |
| Voir | Disponible | 114 000€ | LA327 | Appt. | Studio | 18.34m2 | 3ème | Disponible | 114 000€ | Voir |
| Voir | Disponible | 114 000€ | LA328 | Appt. | Studio | 18.34m2 | 3ème | Disponible | 114 000€ | Voir |
| Voir | Disponible | 114 000€ | LA329 | Appt. | Studio | 18.34m2 | 3ème | Disponible | 114 000€ | Voir |
| Voir | Disponible | 114 000€ | LA330 | Appt. | Studio | 18.34m2 | 3ème | Disponible | 114 000€ | Voir |
| Voir | Disponible | 114 000€ | LA331 | Appt. | Studio | 18.34m2 | 3ème | Disponible | 114 000€ | Voir |
| Voir | Disponible | 114 000€ | LA332 | Appt. | Studio | 18.72m2 | 3ème | Disponible | 114 000€ | Voir |
| Voir | Disponible | 119 001€ | LA333 | Appt. | Studio | 23.03m2 | 3ème | Disponible | 119 001€ | Voir |
| Voir | Disponible | 110 400€ | LA334 | Appt. | Studio | 18.34m2 | 3ème | Disponible | 110 400€ | Voir |
| Voir | Disponible | 110 400€ | LA335 | Appt. | Studio | 18.34m2 | 3ème | Disponible | 110 400€ | Voir |
| Voir | Disponible | 110 400€ | LA336 | Appt. | Studio | 18.34m2 | 3ème | Disponible | 110 400€ | Voir |
| Voir | Disponible | 110 400€ | LA337 | Appt. | Studio | 18.34m2 | 3ème | Disponible | 110 400€ | Voir |
| Voir | Disponible | 110 400€ | LA338 | Appt. | Studio | 18.34m2 | 3ème | Disponible | 110 400€ | Voir |
| Voir | Disponible | 110 400€ | LA339 | Appt. | Studio | 18.34m2 | 3ème | Disponible | 110 400€ | Voir |
| Voir | Disponible | 110 400€ | LA340 | Appt. | Studio | 18.34m2 | 3ème | Disponible | 110 400€ | Voir |
| Voir | Disponible | 110 400€ | LA341 | Appt. | Studio | 18.34m2 | 3ème | Disponible | 110 400€ | Voir |
| Voir | Optionné | 111 801€ | LA342 | Appt. | Studio | 21.22m2 | 3ème | Optionné Mais pas encore vendu 😉 | 111 801€ | Voir |
| Voir | Disponible | 116 601€ | LA401 | Appt. | Studio | 22.09m2 | 4ème | Disponible | 116 601€ | Voir |
| Voir | Disponible | 114 000€ | LA402 | Appt. | Studio | 18.34m2 | 4ème | Disponible | 114 000€ | Voir |
| Voir | Disponible | 114 000€ | LA403 | Appt. | Studio | 18.34m2 | 4ème | Disponible | 114 000€ | Voir |
| Voir | Disponible | 114 000€ | LA404 | Appt. | Studio | 18.34m2 | 4ème | Disponible | 114 000€ | Voir |
| Voir | Disponible | 114 000€ | LA405 | Appt. | Studio | 18.34m2 | 4ème | Disponible | 114 000€ | Voir |
| Voir | Disponible | 114 000€ | LA406 | Appt. | Studio | 18.34m2 | 4ème | Disponible | 114 000€ | Voir |
| Voir | Disponible | 114 000€ | LA407 | Appt. | Studio | 18.34m2 | 4ème | Disponible | 114 000€ | Voir |
| Voir | Disponible | 114 000€ | LA408 | Appt. | Studio | 18.34m2 | 4ème | Disponible | 114 000€ | Voir |
| Voir | Disponible | 109 200€ | LA409 | Appt. | Studio | 17.88m2 | 4ème | Disponible | 109 200€ | Voir |
| Voir | Disponible | 115 401€ | LA410 | Appt. | Studio | 21.42m2 | 4ème | Disponible | 115 401€ | Voir |
| Voir | Disponible | 115 200€ | LA411 | Appt. | Studio | 18.02m2 | 4ème | Disponible | 115 200€ | Voir |
| Voir | Disponible | 115 200€ | LA412 | Appt. | Studio | 18.34m2 | 4ème | Disponible | 115 200€ | Voir |
| Voir | Disponible | 115 200€ | LA413 | Appt. | Studio | 18.34m2 | 4ème | Disponible | 115 200€ | Voir |
| Voir | Disponible | 115 200€ | LA414 | Appt. | Studio | 18.34m2 | 4ème | Disponible | 115 200€ | Voir |
| Voir | Disponible | 115 200€ | LA415 | Appt. | Studio | 18.34m2 | 4ème | Disponible | 115 200€ | Voir |
| Voir | Disponible | 115 200€ | LA416 | Appt. | Studio | 18.34m2 | 4ème | Disponible | 115 200€ | Voir |
| Voir | Disponible | 115 200€ | LA417 | Appt. | Studio | 18.34m2 | 4ème | Disponible | 115 200€ | Voir |
| Voir | Disponible | 115 200€ | LA418 | Appt. | Studio | 18.34m2 | 4ème | Disponible | 115 200€ | Voir |
| Voir | Disponible | 116 400€ | LA419 | Appt. | Studio | 19.22m2 | 4ème | Disponible | 116 400€ | Voir |
| Voir | Disponible | 115 200€ | LA420 | Appt. | Studio | 17.92m2 | 4ème | Disponible | 115 200€ | Voir |
| Voir | Disponible | 115 200€ | LA421 | Appt. | Studio | 17.86m2 | 4ème | Disponible | 115 200€ | Voir |
| Voir | Disponible | 116 400€ | LA422 | Appt. | Studio | 19.22m2 | 4ème | Disponible | 116 400€ | Voir |
| Voir | Disponible | 115 200€ | LA423 | Appt. | Studio | 17.92m2 | 4ème | Disponible | 115 200€ | Voir |
| Voir | Disponible | 115 200€ | LA424 | Appt. | Studio | 17.86m2 | 4ème | Disponible | 115 200€ | Voir |
| Voir | Disponible | 116 400€ | LA425 | Appt. | Studio | 19.22m2 | 4ème | Disponible | 116 400€ | Voir |
| Voir | Disponible | 115 200€ | LA426 | Appt. | Studio | 17.92m2 | 4ème | Disponible | 115 200€ | Voir |
| Voir | Disponible | 117 801€ | LA427 | Appt. | Studio | 18.34m2 | 4ème | Disponible | 117 801€ | Voir |
| Voir | Disponible | 117 801€ | LA428 | Appt. | Studio | 18.34m2 | 4ème | Disponible | 117 801€ | Voir |
| Voir | Disponible | 117 801€ | LA429 | Appt. | Studio | 18.34m2 | 4ème | Disponible | 117 801€ | Voir |
| Voir | Disponible | 117 801€ | LA430 | Appt. | Studio | 18.34m2 | 4ème | Disponible | 117 801€ | Voir |
| Voir | Disponible | 117 801€ | LA431 | Appt. | Studio | 18.34m2 | 4ème | Disponible | 117 801€ | Voir |
| Voir | Disponible | 117 801€ | LA432 | Appt. | Studio | 18.34m2 | 4ème | Disponible | 117 801€ | Voir |
| Voir | Disponible | 117 801€ | LA433 | Appt. | Studio | 18.34m2 | 4ème | Disponible | 117 801€ | Voir |
| Voir | Disponible | 114 201€ | LA434 | Appt. | Studio | 21.22m2 | 4ème | Disponible | 114 201€ | Voir |
| Voir | Disponible | 126 186€ | LA501 | Appt. | Studio | 23.24m2 | 5ème | Disponible | 126 186€ | Voir |
| Voir | Disponible | 186 201€ | LA502 | Appt. | Studio | 30.6m2 | 5ème | Disponible | 186 201€ | Voir |
| Voir | Disponible | 118 800€ | LA503 | Appt. | Studio | 19.22m2 | 5ème | Disponible | 118 800€ | Voir |
| Voir | Disponible | 117 600€ | LA504 | Appt. | Studio | 17.92m2 | 5ème | Disponible | 117 600€ | Voir |
| Voir | Disponible | 117 600€ | LA505 | Appt. | Studio | 17.86m2 | 5ème | Disponible | 117 600€ | Voir |
| Voir | Disponible | 118 800€ | LA506 | Appt. | Studio | 19.22m2 | 5ème | Disponible | 118 800€ | Voir |
| Voir | Disponible | 117 600€ | LA507 | Appt. | Studio | 17.92m2 | 5ème | Disponible | 117 600€ | Voir |
| Voir | Disponible | 117 600€ | LA508 | Appt. | Studio | 17.86m2 | 5ème | Disponible | 117 600€ | Voir |
| Voir | Disponible | 118 800€ | LA509 | Appt. | Studio | 19.22m2 | 5ème | Disponible | 118 800€ | Voir |
| Voir | Disponible | 117 600€ | LA510 | Appt. | Studio | 17.92m2 | 5ème | Disponible | 117 600€ | Voir |
| Voir | Disponible | 115 200€ | LA511 | Appt. | Studio | 18.34m2 | 5ème | Disponible | 115 200€ | Voir |
| Voir | Disponible | 115 200€ | LA512 | Appt. | Studio | 18.34m2 | 5ème | Disponible | 115 200€ | Voir |
| Voir | Disponible | 115 200€ | LA513 | Appt. | Studio | 18.34m2 | 5ème | Disponible | 115 200€ | Voir |
| Voir | Disponible | 115 200€ | LA514 | Appt. | Studio | 18.34m2 | 5ème | Disponible | 115 200€ | Voir |
| Voir | Disponible | 115 200€ | LA515 | Appt. | Studio | 18.34m2 | 5ème | Disponible | 115 200€ | Voir |
| Voir | Disponible | 115 200€ | LA516 | Appt. | Studio | 18.34m2 | 5ème | Disponible | 115 200€ | Voir |
| Voir | Disponible | 114 000€ | LA517 | Appt. | Studio | 18.34m2 | 5ème | Disponible | 114 000€ | Voir |
| Voir | Disponible | 122 601€ | LA518 | Appt. | Studio | 21.22m2 | 5ème | Disponible | 122 601€ | Voir |