287 600€ (TVA 20%)
252 848€ (TVA 5.5%)
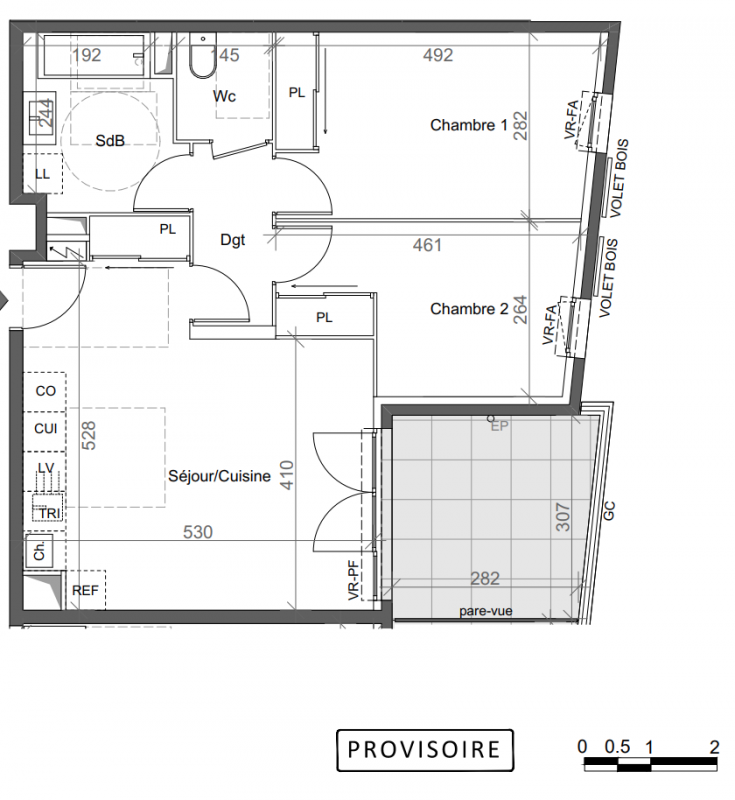
Appt. au 3ème
T3
61.14 m²
Est
Draguignan (83300)
2ème trimestre 2028
01 81 80 39 10
Présentation du programme "Programme neuf Draguignan (83300)"
GRAND LANCEMENT COMMERCIAL à Draguignan les 27 & 28 février ! Soyez parmi les premiers à choisir votre appartement neuf avec espace extérieur et parking ! Jusqu'à 9000 euros de remise & frais de notaire offerts pendant 2 jours seulement. Avec la TVA réduite à 5,5%, devenez propriétaire pour le même prix que votre loyer ! Située à l'entrée de la ville, sur le boulevard Léon Blum, notre nouvelle résidence prend place dans un quartier résidentiel calme, près des équipements scolaires et sportifs, offrant un quotidien pratique et agréable. Le programme propose seulement 46 logements de 2 et 3 pièces, chacun doté d'un espace extérieur privatif : terrasse, balcon ou jardin en rez-de-chaussée, parfait pour profiter du climat méditerranéen en toutes saisons.Côté prestations, chaque appartement dispose d'une place de stationnement, un véritable confort dans ce secteur recherché. L'architecture contemporaine, mise en valeur par l'utilisation de pierre, confère à la résidence une allure moderne, élégante et parfaitement intégrée à son environnement.Proche du centre-ville, la résidence permet d'accéder facilement aux commerces, services, établissements scolaires et infrastructures sportives. Idéalement située, elle se trouve à seulement une trentaine de kilomètres du littoral et des destinations emblématiques telles que Saint-Tropez, Fréjus ou Sainte-Maxime, offrant un accès privilégié aux plages et aux plaisirs de la Côte d'Azur. Draguignan, ville dynamique au cœur du Var, séduit par son art de vivre, son attractivité et sa situation stratégique entre mer et arrière-pays. Une adresse parfaite pour habiter ou investir, d'autant que le programme est éligible à la TVA réduite à 5,5 %, une opportunité rare pour devenir propriétaire dans un cadre aussi prisé.Contactez dès maintenant nos conseillers pour découvrir tous nos appartements neufs à Draguignan et être parmi les premiers à choisir le logement qui vous correspond !
Autres logements T3 du programme "Programme neuf Draguignan (83300)"
| Disponibilité | Prix | No | Genre | Pièces | Surface | Étage | Disponibilité | Prix | ||
|---|---|---|---|---|---|---|---|---|---|---|
| Voir | Disponible | 263 900€ | A101 | Appt. | T3 | 62m2 | 1er | Disponible | 263 900€ | Voir |
| Voir | Disponible | 259 200€ | A104 | Appt. | T3 | 62.8m2 Le bon plan | 1er | Disponible | 259 200€ | Voir |
| Voir | Disponible | 266 200€ | A109 | Appt. | T3 | 61.14m2 | 1er | Disponible | 266 200€ | Voir |
| Voir | Disponible | 271 000€ | A201 | Appt. | T3 | 62m2 | 2ème | Disponible | 271 000€ | Voir |
| Voir | Disponible | 265 100€ | A204 | Appt. | T3 | 62.8m2 | 2ème | Disponible | 265 100€ | Voir |
| Voir | Disponible | 261 500€ | A207 | Appt. | T3 | 61.85m2 | 2ème | Disponible | 261 500€ | Voir |
| Voir | Disponible | 278 000€ | A208 | Appt. | T3 | 66.01m2 | 2ème | Disponible | 278 000€ | Voir |
| Voir | Disponible | 278 000€ | A209 | Appt. | T3 | 61.14m2 | 2ème | Disponible | 278 000€ | Voir |
| Voir | Disponible | 282 800€ | A301 | Appt. | T3 | 62m2 | 3ème | Disponible | 282 800€ | Voir |
| Voir | Disponible | 275 800€ | A304 | Appt. | T3 | 62.8m2 | 3ème | Disponible | 275 800€ | Voir |
| Voir | Disponible | 272 100€ | A307 | Appt. | T3 | 61.85m2 | 3ème | Disponible | 272 100€ | Voir |
| Voir | Disponible | 289 900€ | A308 | Appt. | T3 | 66.01m2 | 3ème | Disponible | 289 900€ | Voir |