Ce lot n’est plus disponible chez VIANOVA ou est vendu.
Vous pouvez revenir dans 24h pour vérifier le stock à jour ou contacter un conseiller Vianova pour vérifier le stock en direct.
Vous pouvez également continuer votre recherche sur notre site « ici ».
392 400€
- €
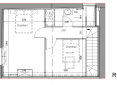
Appt. au 0-RDC
T3
55.32 m²
Sud
Mérignac (33700)
4ème trimestre 2027
01 81 80 39 10
Présentation du programme "CHATEAU BON AIR"
Mérignac est une commune de la banlieue Ouest bordelaise. Intégrée à l’aire urbaine de Bordeaux, elle profite de son attraction économique et touristique. Plusieurs grandes entreprises se sont implantées sur ce territoire attractif : Thales, Oxbow, Dassault, Cultura ou encore Cofinoga. Toutes sont séduites par le dynamisme et les perspectives de croissance de la deuxième ville de Gironde.
Idéalement situé à seulement 10 min de Bordeaux et proche de nombreuses commodités et d’écoles, le Château Bon Air se dresse à l’entrée du bois de Burck. Cette adresse verra ses richesses architecturales préservées. Le Château Bon Air accueillera 15 logements pour la majorité traversants. Sa variété de typologies offrira une réponse complète à la demande locative.
Autres logements T3 du programme "CHATEAU BON AIR"
| Disponibilité | Prix | No | Genre | Pièces | Surface | Étage | Disponibilité | Prix | ||
|---|---|---|---|---|---|---|---|---|---|---|
| Voir | Archivé | 595 900€ | 6-PK6 | Appt. | T3 | 76.65m2 | 0-RDC | Archivé Mais pas encore vendu 😉 | 595 900€ Prix foncier 86 700€ Prix travaux 509 200€ | Voir |
| Voir | Archivé | 457 100€ | 14a-PK15 | Appt. | T3 | 53.11m2 | 0-RDC | Archivé | 457 100€ Prix foncier 57 400€ Prix travaux 399 700€ | Voir |
| Voir | Archivé | 461 100€ | 13b-pk14 | Appt. | T3 | 53.68m2 | 0-RDC | Archivé | 461 100€ Prix foncier 57 900€ Prix travaux 403 200€ | Voir |

