399 700€
- €
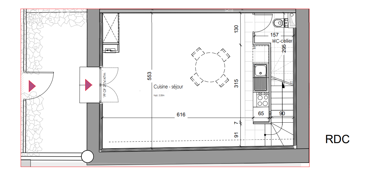
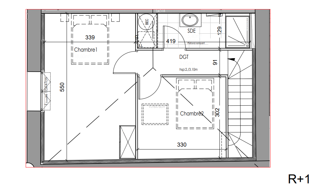
Appt. au 0-RDC
T3
53.11 m²
Sud
Mérignac (33700)
4ème trimestre 2027
01 81 80 39 10
Présentation du programme "CHATEAU BON AIR"
Mérignac est une commune de la banlieue Ouest bordelaise. Intégrée à l’aire urbaine de Bordeaux, elle profite de son attraction économique et touristique. Plusieurs grandes entreprises se sont implantées sur ce territoire attractif : Thales, Oxbow, Dassault, Cultura ou encore Cofinoga. Toutes sont séduites par le dynamisme et les perspectives de croissance de la deuxième ville de Gironde.
Idéalement situé à seulement 10 min de Bordeaux et proche de nombreuses commodités et d’écoles, le Château Bon Air se dresse à l’entrée du bois de Burck. Cette adresse verra ses richesses architecturales préservées. Le Château Bon Air accueillera 15 logements pour la majorité traversants. Sa variété de typologies offrira une réponse complète à la demande locative.
Autres logements T3 du programme "CHATEAU BON AIR"
| Disponibilité | Prix | No | Genre | Pièces | Surface | Étage | Disponibilité | Prix | ||
|---|---|---|---|---|---|---|---|---|---|---|
| Voir | Optionné | 595 900€ | 6-PK6 | Appt. | T3 | 76.65m2 | 0-RDC | Optionné Mais pas encore vendu 😉 | 595 900€ Prix foncier 86 700€ Prix travaux 509 200€ | Voir |
| Voir | Disponible | 452 100€ | 12a-PK12 | Appt. | T3 | 55.32m2 | 0-RDC | Disponible | 452 100€ Prix foncier 59 700€ Prix travaux 392 400€ | Voir |
| Voir | Disponible | 461 100€ | 13b-pk14 | Appt. | T3 | 53.68m2 | 0-RDC | Disponible | 461 100€ Prix foncier 57 900€ Prix travaux 403 200€ | Voir |

